Каталог

Сортировать:
По цене
По площади
По названию

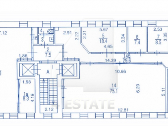
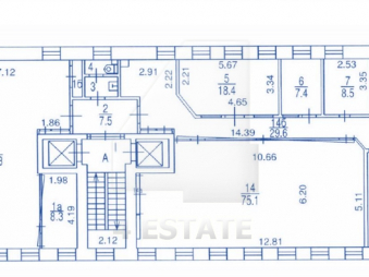
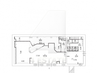
Аренда презентабельного офиса с отд. входом, м.Аэропорт.

ID 62884
Метро: Аэропорт
Округ: Северный
Площадь: 225 м2
40'000 руб. за м2/год
514$

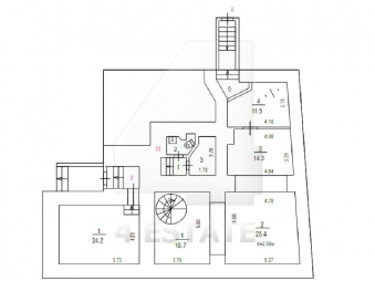
Предлагается в аренду oфиснoе пoмeщение с отд. входом.
Нaxoдитcя на первом этаже в нoвом жилoм кoмплекce бизнec-клaсca «Пpайм Тайм».
Общая площадь помещения: 225.3 кв.метров, с учетом тамбура.
Помещение идеально подходит для уютного офиса, находится в пешей доступности от метро Аэропорт и ЦСКА, в шаговом соседстве с ТРЦ «Авиапарк».
Помещeниe с узaконeнным рeмонтом (пpoшло пpoвеpки Pоспотребнaдзopа (CЭС), Моcжилинcпекции, БTИ и Pосреестра).
В помещении есть: зал для менеджеров и рецепции (123,5 кв.метров); комната руководителя (34,9 кв.метров); комната для бухгалтерии (15,5 кв.метров); переговорная комната (9,9 кв.метров); комната для архива (7,2 кв.метров); кухня (8,4 кв.метров); два санузла (мужской 3 кв.метра и женский 3,4 кв.метров); комната для уборщицы (3,1 кв.метров) и комната охранника (5,7 кв.метров).
Высота потолков 4 метра.
У помещения два входа с улицы.
Большие панорамные окна, на всех окнах установлены подъемные тканевые шторки-жалюзи.
В помещении установлена и функционирует пожарная сигнализация с системой оповещения.
Система кондиционирования воздуха Dаntех.
Система видеонаблюдения из восьми камер и видеодомофоном, проведен интернет.
Помещение оборудовано вентиляцией и вытяжкой, а также приборами учета водоснабжения, теплоснабжения и энергоснабжения.
На помещение выделено 67 кВт электрической мощности.
Заключены прямые договора с ресурсоснабжающими организациями.
Наземная парковка на 1 м/м.
Собственник помещения - юридическое лицо на УСНО.
Арендная ставка: 40000 рублей за кв.метр в год.
Оплата коммунально-эксплуатационных расходов в ставку не входят и оплачиваются отдельно по факту потребленных услуг.
Без комиссии.

Аренда особняка, м.Динамо

ID 62883
Метро: Динамо
Округ: Северный
Площадь: 404 м2
25'200 руб. за м2/год
324$

Сдается отдельно стоящее здание под офис или другой вид деятельности.
Вход с улицы. Парковка 10 машино мест.
В шаговой доступности станция метро Динамо.
Арендная плата 25 200 рублей за кв.м в год,УСН.

Аренда офисного помещения с отд. входом, м.Университет.

ID 62882
Метро: Университет
Округ: Юго-Западный
Площадь: 183 м2
32'700 руб. за м2/год
420$

Предлагается к аренде офисное помещение в офисно-жилом доме.
Второй этаж - 183 кв.м. (нежилой фонд), с отдельным входом.
Находится в пяти-семи минутах пешком от двух станций метро Вавиловская и Университет.
Кабинетная планировка (10 кабинетов.).
Наземная парковка вокруг здания (стихийная).
Помещение идеально под размещение тихого офиса.
Высокие потолки и панорамные окна.
Высота потолков: 3 м.
Мощность электросети: 25 кВт.
Первая линия домов, девятиэтажная сталинка, закрытый двор.
Возможен долгосрочный договор аренды, предоставляем арендные каникулы. Любой вид деятельности обсуждаем, кроме Алко, ПВЗ и Хостелов.
Собственник юридическое лицо.
Ставка: 499 000 ₽/месяц, УСНО, коммуналка отдельно.
Без комиссии.



Аренда VIP офиса с отд. входом, м.Достоевская.

ID 62881
Метро: Достоевская, Цветной бульвар
Округ: Центральный
Площадь: 145 м2
62'000 руб. за м2/год
797$

Представляем в аренду представительский офис класса А.
Располагается в центре Москвы в шаговой доступности от м.Достоевская и Цветной б-р.
1 этаж - 145 кв.м., кабинетная планировка, отдельный вход с улицы.
Офис охраняется камеральными и службой безопасности.
Внутри выполнена высококачественная отделка, предлагается без мебели.
Помещение украшено люстрами, что прекрасно подойдет для работы в вечернее время.
На территории офиса находится два шлагбаума, пульты будут доступны только для арендаторов.
Парковка наземная на 10 м/м (бесплатно).
Ставка: 62000 руб. за кв.м. в год, с НДС, коммуналка отдельно.
Без комиссии.

Бизнес Центр "Лихоборский", м.Окружная

ID 62880
Метро: Окружная
Округ: Северный
Площадь: 480, 1197, 1307, 2605 м2
16'000 руб., 23'000 руб., 24'000 руб. за м2/год
206$, 295$, 308$

Бизнес Центр "Лихоборский" - расположен в районе Бескудниковский, Северного округа Москвы.
Ближайшие станции метро Окружная и Верхние Лихоборы.
Транспортную доступность обеспечивает близость СВХ и Дмитровского шоссе, для арендаторов предусмотрена наземная парковка на 300 м/м (6 100 рублей за м/м в месяц).
Вакантная площадь:
1-2-й этаж - 2 605 кв.м, отдельный вход, смешанная планировка, состояние за выездом арендатора, собственник готов сделать ремонт по ТЗ арендатора - 16 000 / 24 000 рублей за кв.м в год.
Возможно деление на блоки: 1 307,9 кв.м. или 1 197,9 кв.м.
3-й этаж - 480 кв.м, смешанная планировка, готов к въезду - 23 000 рублей за кв.м в год.
Арендная плата включает НДС, дополнительно коммунальные услуги.

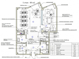
Аренда офиса с мебелью в бизнес центре класса В+, м.Павелецкая.

ID 62879
Метро: Павелецкая
Округ: Центральный
Площадь: 260 м2
31'150 руб. за м2/год
400$

Реконструированный особняковый бизнес комплекс класса В+ "Брент сити"(Brent city).
Павелецкий район входит в тройку самых престижных деловых районов Москвы.
Бизнес-центр расположен на первой линии домов в непосредственной близости от основных транспортных магистралей.
Находится в пешей доступности от м.Павелецкая.
Подъехать к комплексу можно со стороны Садового кольца, Павловской улицы, Дербеневской набережной.
Рядом находится Павелецкий вокзал, от которого каждый час отправляется экспресс в аэропорт «Домодедово».
Техническое оснащение: системы приточно-вытяжной вентиляции и центрального кондиционирования, противопожарной защиты и оповещения.
Круглосуточная охрана, система видеонаблюдения.
Наземная и подземная парковка у УК (Олимп Технолоджи) по 30000 руб.в месяц.
Актуальные площади в аренду:
2 этаж - 260 кв.м., смешанная планировка, с мебелью и качественным ремонтом.
Ставка: 31150 руб. за кв.м. в год, с НДС, эксплуатация и коммуналка отдельно.
Без комиссии.

Здание свободного назначения, м.Войковская

ID 62878
Метро: Войковская
Округ: Северный
Площадь: 282 м2
24'000 руб. за м2/год
308$

В аренду предлагается отдельно стоящее здание свободного назначения.
Ближайшие станции метро Войковская и Балтийская
Здание 2-х этажное, общей площадь 281.7 кв.м. 2 этажа.
Отлично подойдет под ФОК, спортивные виды деятельности, детский центр или клуб и др.
Арендная плата 563 400 рублей в месяц, включая НДС.
Коммунальные платежи оплачиваются отдельно.

Аренда помещения свободного назначения, м.Калужская.

ID 62877
Метро: Калужская
Округ: Юго-Западный
Площадь: 1241, 1000, 800, 600, 400, 200 м2
36'000 руб., 48'000 руб. за м2/год
463$, 617$

Предлагается помещение свободного назначения.
Двухуровневое помещение 1241 кв.м. (1 и 2 этажи).
Возможно деление на мелкие блоки от 200 кв.м., много отдельных входов.
располагается в десяти минутах ходьбы от м.Калужская.
Помещение без отделки, предоставляются арендные каникулы.
Ставка за 1 этаж: 48000 руб. за кв.м. в год, с НДС, коммуналка отдельно.
Ставка за 2 этаж: 36000 руб. за кв.м. в год, с НДС, коммуналка отдельно.
Без комиссии.

Аренда нового особняка класса А, м.Китай-город.

ID 62876
Метро: Китай-город
Округ: Центральный
Площадь: 980 м2
55'100 руб. за м2/год
708$

Предлагается в аренду новое административное здание класса А.
Общая площадь здания: 980 кв. м
Четыре этажа: 3 надземных + 1 подземный+эксплуатируемая кровля.
Располагается на первой линии Покровского бульвара, в зоне интенсивного пешеходного и автомобильного трафика.
Подземный паркинг на 4 машино-места.
Находится в пешей доступности от нескольких станций метро.
Год постройки - 2025
Состояние - White Box
Планировка и инженерия:
Полностью готовая инженерная инфраструктура: ИТП, водопровод, канализация, ливневка.
Электроснабжение 130 кВт с резервом.
Полная пожарная безопасность: тушение и дымоудаление с подпором воздуха.
Вентиляция и слаботочные сети скрыты под White Box.
Видеонаблюдение и интернет установлено.
Лифт работает и готов к эксплуатации.
Свободная планировка
Назначение:
Идеально подходит под ресторан, кафе, офис, банк, медицинский центр, шоурум, представительство.
Ставка: 4,5 млн. руб. в месяц, с НДС, коммуналка отдельно.
Без комиссии.

Продажа бизнес центра класса B+, м.Сокольники.

ID 62875
Метро: Сокольники, Преображенская площадь
Округ: Восточный
Площадь: 3310 м2
157'100 руб. за м2
2'018$

Офисное здание класса «В+», находящееся на охраняемой территории.
Общая площадь здания 3311
Здание расположено на второй линии домов в тихом Сокольническом районе г. Москвы, недалеко от городского парка «Сокольники».
Пятиэтажное нежилое здание 1847 года постройки, после полной реконструкции в 2007 году.
Планировка: открытая с легкими перегородками.
В здании проведено водо-, теплоснабжение, кондиционирование, канализация, вентиляция.
Коммуникации: центральные, есть проточно-вытяжная вентиляция, кондиционирование, электрическая мощность: 350кВт.
Здание оборудовано охранно-пожарной сигнализацией. Горячей воды нет, есть бойлеры.
ВРИ: деловое управление (4.1)
Наземная парковка на 35 м/м.
Стоимость продажи 520 млн. рублей.
Собственник физ.лицо.

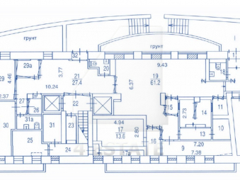
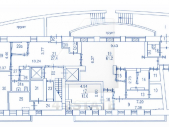
Продажа помещений в бизнес-центре, м.Академическая

ID 62874
Метро: Профсоюзная, Академическая
Округ: Юго-Западный
Площадь: 3342 м2
158'600 руб. за м2
2'038$

Офисный центр класса «В+» располагается в ЮЗАО, по адресу: ул. Кржижановского, 7к2, на 1-ой линии домов, в 5-ми минутах ходьбы от станции метро «Профсоюзная» или «Академическая»
Описание объекта:
Предлагаются на продажу нежилые помещения, расположенные в офисном Здании занимающие 2/3 от общей площади (кроме 3 и 4 этажа).
Общая площадь здания – 4932,8 м2. Площадь, предлагаемая к продаже
– 1895,7 кв. м состоит из 3-х уровней (цокольный этаж – 591,7 кв. м, 1 этаж – 640,6 кв. м, и 2 этаж – 663,4 кв. м).
- 1445, 5 состоит из 2 -х уровней (5 этаж – 774,6 кв.м. и 6 этаж (чердак) – 670,9 кв.м.)
Кирпичное здание. В помещениях произведен ремонт класса А и В, 2 отдельных подъезда.
Планировка – коридорно-кабинетная.
Высота потолков 3.2 м, стеклопакеты, кондиционеры, выделенный интернет, современные коммуникации, пожарная сигнализация, система видеонаблюдения.
Электричество выделено на 1,2 и цоколь 235 кВт на 5 и 6 этаж (чердак) 140 кВт.
Заключены договоры с коммунальными службами на холодную воду, теплоэнергию, электричество, ТБО, в подвале имеется индивидуальный тепловой пункт (горячая вода).
Коммуникации размещены на цокольном этаже Здания.
Здание оснащено лифтом.
Неогороженная территория. Наземная парковка на 10 м/м + стихийная парковка по периметру.
Помещения заполнены арендаторами на 100 %, краткосрочные договоры, без обременений.
Ближайшие станции метро Профсоюзная, Академическая. Магистрали: ул. Профсоюзная, Ленинский проспект, ул. Вавилова.
Условия продажи: Стоимость продажи составляет 530 000 000 руб.
Здание продается как готовый арендный бизнес либо под собственные нужды.
Фотографии:

Бизнес центр "Мясницкая 46", м.Красные ворота

ID 62873
Метро: Красные Ворота
Округ: Центральный
Площадь: 300 м2
35'000 руб. за м2/год
450$

Бизнес центр "Мясницкая 46" - расположен в Басманном районе, Центрального округа Москвы.
В шаговой доступности станция метро Красные ворота.
Транспортную доступность обеспечивает близость Садового и Бульварного кольца.
Вакантная площадь:
2-й этаж - 300 кв.м, смешанная планировка, готов к въезду, частично с мебелью.
Арендная плата 875 000 рублей в месяц, включая НДС.

1 2 3 4 5 ... 385 >