АРЕНДА ПОМЕЩЕНИЯ В ЖИЛОМ ДОМЕ, М.кРОПОТКИНСКАЯ
ID 62900
Метро: Кропоткинская
Округ: Центральный
Площадь: 162 м2
40'800 руб. за м2/год
575$
В аренду предлагается помещения с отдельным входом в жилом доме.
Здание расположено в районе Хамовники, Центрального округа Москвы.
В шаговой доступности станция метро Кропоткинская.
Вакантная площадь:
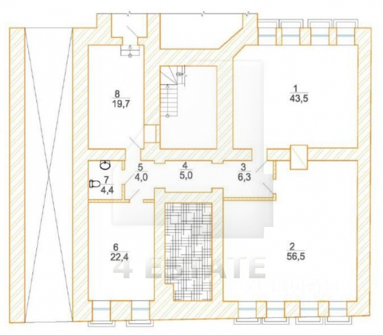
Цоколь - 162 кв.м, отдельный вход со двора, сделан качественный ремонт, смешанная планировка.
Арендная плата 550 000 рублей в месяц, УСН (5%).
Коммунальные платежи оплачиваются по факту потребления.
Здание расположено в районе Хамовники, Центрального округа Москвы.
В шаговой доступности станция метро Кропоткинская.
Вакантная площадь:
Цоколь - 162 кв.м, отдельный вход со двора, сделан качественный ремонт, смешанная планировка.
Арендная плата 550 000 рублей в месяц, УСН (5%).
Коммунальные платежи оплачиваются по факту потребления.
Расположение
Округ:
Район:
Метро:
Расстояние до метро:
5 мин пешком
Коммерческие условия
Налогообложение:
УСНО
Коммунальные платежи:
не включены
Договор аренды:
Прямой
Связь:
Оплачиваются отдельно
Электричество:
Оплачиваются отдельно
Характеристики здания
Этаж:
цоколь
Комиссия:
Объект предлагается без комиссии агентства
Тип здания:
Жилой дом
Планировка:
Смешанная
Состояние отделки:
Ремонт высокого класса