Офисное помещение с отд. входом в новом ЖК, м.Молодежная.
ID 62899
Метро: Молодёжная
Округ: Западный
Площадь: 161 м2
29'150 руб. за м2/год
411$
Современный, полностью готовый офисный блок в офисной части нового жилого комплекса:
Презентабельная входная группа и отдельный вход в офисный блок.
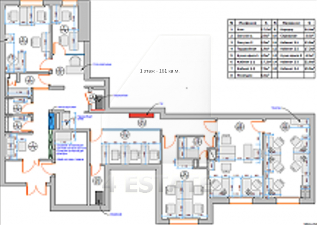
1 этаж - 161 кв.м., новый дизайнерский ремонт, шесть кабинетов с готовыми рабочими местами, оборудованная зона ресепшн, серверная, мини-кухня+кладовка, гардеробная.
Все необходимые инженерные системы: высокоскоростной интернет 1Гбт, возможность выбора провайдеров, система контроля доступа, пожарная и охранная сигнализации, кондиционирование (новые сплиты Мицубиши). Окна выходят и открываются на зеленый массив.
Находится в пешей доступности от м. Молодежная (7-8 минут пешком).
Рядом развитая инфраструктура: МФК Кунцево Плаза (рестораны, кафе, Ашан, шоппинг, мед.центр, банкоматы и др.).
Наземная парковка на 3-4 м/м (бесплатно) - места на охраняемой территории.
В аренде только полезная площадь, без коридорных коэффициентов.
Предоставляется юридический адрес.
Ставка: 391 000 рублей в месяц, с НДС 22%.
Без комиссии.
Презентабельная входная группа и отдельный вход в офисный блок.
1 этаж - 161 кв.м., новый дизайнерский ремонт, шесть кабинетов с готовыми рабочими местами, оборудованная зона ресепшн, серверная, мини-кухня+кладовка, гардеробная.
Все необходимые инженерные системы: высокоскоростной интернет 1Гбт, возможность выбора провайдеров, система контроля доступа, пожарная и охранная сигнализации, кондиционирование (новые сплиты Мицубиши). Окна выходят и открываются на зеленый массив.
Находится в пешей доступности от м. Молодежная (7-8 минут пешком).
Рядом развитая инфраструктура: МФК Кунцево Плаза (рестораны, кафе, Ашан, шоппинг, мед.центр, банкоматы и др.).
Наземная парковка на 3-4 м/м (бесплатно) - места на охраняемой территории.
В аренде только полезная площадь, без коридорных коэффициентов.
Предоставляется юридический адрес.
Ставка: 391 000 рублей в месяц, с НДС 22%.
Без комиссии.
Коммерческие условия
Налогообложение:
НДС включен
Эксплуатационные расходы:
не включены
Коммунальные платежи:
не включены
Договор аренды:
Прямой
Связь:
Оплачиваются отдельно
Электричество:
Оплачиваются отдельно
Характеристики здания
Класс:
B+
Этажей в здании:
23
Этаж:
1
Комиссия:
Объект предлагается без комиссии агентства
Тип здания:
Жилой дом
Планировка:
Корридорно-кабинетная
Состояние отделки:
Готово к въезду
Провайдер:
Билайн
Кондиционирование:
Сплит-системы
Безопасность:
Организована сиcтема доступа
Мебель:
Нет
Парковка
Парковка:
Наземная
Количество:
3-4