Продажа здания класса В+, м.Новокузнецкая.
ID 31987
Метро: Новокузнецкая
Округ: Центральный
Площадь: 1648 м2
212'400 руб. за м2
2'969$
Продается трехэтажный отдельно стоящий особняк.
Объект расположен в Центральном административном округе г. Москвы.
Ближайшая станция метро: «Новокузнецкая».
Основные характеристики здания:
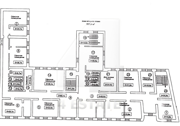
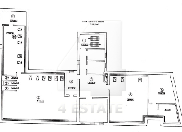
Общая площадь здания – 1648,8 кв.м;
Год постройки здания – 1958 г.;
Год реконструкции – 2005 г.;
Конструктив здания – ж/б, кирпич;
Высота потолков – от 2,81 до 3,15 м;
Земельный участок – 1199 кв.м, аренда до 2061г.;
Наземная парковка на 12 м/м;
Электрическая мощность – 210 кВт;
Современные системы коммуникаций и кондиционирования, пожаротушения;
Связь – МГТС (20 номеров);
На данный момент особняк частично сдан нескольким арендаторам(11 мес.договор).
Вид сделки обсуждается по договоренности.
Стоимость: 350 млн. рублей, возможен торг.
Без комиссии.
Объект расположен в Центральном административном округе г. Москвы.
Ближайшая станция метро: «Новокузнецкая».
Основные характеристики здания:
Общая площадь здания – 1648,8 кв.м;
Год постройки здания – 1958 г.;
Год реконструкции – 2005 г.;
Конструктив здания – ж/б, кирпич;
Высота потолков – от 2,81 до 3,15 м;
Земельный участок – 1199 кв.м, аренда до 2061г.;
Наземная парковка на 12 м/м;
Электрическая мощность – 210 кВт;
Современные системы коммуникаций и кондиционирования, пожаротушения;
Связь – МГТС (20 номеров);
На данный момент особняк частично сдан нескольким арендаторам(11 мес.договор).
Вид сделки обсуждается по договоренности.
Стоимость: 350 млн. рублей, возможен торг.
Без комиссии.
Расположение
Округ:
Район:
Метро:
Расстояние до метро:
7 мин пешком
Характеристики здания
Класс:
B+
Общая площадь здания:
1648
Этажей в здании:
2
Этаж:
1, 2, мансарда
Комиссия:
Без комиссии
Тип здания:
Особняк
Планировка:
Смешанная
Состояние отделки:
Готово к въезду
Провайдер:
Билайн
Кондиционирование:
Сплит-системы
Безопасность:
Организована сиcтема доступа
Мебель:
Нет
Парковка
Парковка:
Наземная
Количество:
12