Продажа особняка, м.Кропоткинская.
ID 31784
Метро: Кропоткинская
Округ: Центральный
Площадь: 182 м2
988'030 руб. за м2
13'810$
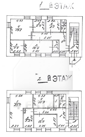
Продается двухэтажное отдельно стоящее здание в районе Хамовники. Наземная парковка возле особняка на 3-4 м/м.
Земля в долгосрочной аренде до 2031г.
Стоимость 3 млн.$
Без комиссии.
Земля в долгосрочной аренде до 2031г.
Стоимость 3 млн.$
Без комиссии.
Расположение
Округ:
Район:
Метро:
Расстояние до метро:
8 мин пешком
Характеристики здания
Класс:
B
Общая площадь здания:
182
Этажей в здании:
2.0000
Этаж:
1.0000
Комиссия:
Объект предлагается без комиссии агентства
Тип здания:
Особняк
Планировка:
Корридорно-кабинетная
Состояние отделки:
Готово к въезду
Провайдер:
Билайн
Кондиционирование:
Сплит-системы
Безопасность:
Видеонаблюдение
Парковка
Парковка:
Наземная
Количество:
4