Аренда в реконструированном бизнес центре класса А, м.Цветной б-р.
ID 62790
Метро: Цветной бульвар
Округ: Центральный
Площадь: 600, 1200 м2
94'000 руб. за м2/год
1'320$
Предлагается в аренду готовые офисы презентабельном бизнес центре класса А.
Общая площадь здания: 4000 кв.м.(четыре этажа + подвал).
Реконструкция закончилась в 2025 г.
Здание расположено на первой линии домов в центре Москвы.
Наземная огороженная парковка на этаж по 3 м/места (бесплатно).
Внутренние помещения с дизайнерской отделкой.
Актуальные площади в аренду:
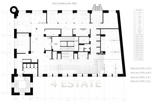
3 этаж и антресоль - 600 кв.м., смешанная планировка.
4 этаж - 600 кв.м., открытая планировка.
Ставка: 94000 руб.за кв.м. в год, УСНО (с НДС 5%), эксплуатация включена, коммунальные платежи отдельно.
Без комиссии.
Общая площадь здания: 4000 кв.м.(четыре этажа + подвал).
Реконструкция закончилась в 2025 г.
Здание расположено на первой линии домов в центре Москвы.
Наземная огороженная парковка на этаж по 3 м/места (бесплатно).
Внутренние помещения с дизайнерской отделкой.
Актуальные площади в аренду:
3 этаж и антресоль - 600 кв.м., смешанная планировка.
4 этаж - 600 кв.м., открытая планировка.
Ставка: 94000 руб.за кв.м. в год, УСНО (с НДС 5%), эксплуатация включена, коммунальные платежи отдельно.
Без комиссии.
Расположение
Округ:
Район:
Метро:
Расстояние до метро:
7 мин пешком
Коммерческие условия
Налогообложение:
УСНО
Эксплуатационные расходы:
включены
Коммунальные платежи:
не включены
Договор аренды:
Прямой
Связь:
Оплачиваются отдельно
Электричество:
Оплачиваются отдельно
Характеристики здания
Класс:
A
Общая площадь здания:
4000
Этажей в здании:
5
Этаж:
3, 4
Комиссия:
Объект предлагается без комиссии агентства
Тип здания:
Бизнес-центр
Планировка:
Смешанная
Состояние отделки:
Ремонт высокого класса
Провайдер:
Билайн
Вентиляция:
Приточно-вытяжная
Кондиционирование:
Центральное
Безопасность:
Организована сиcтема доступа
Мебель:
Нет
Парковка
Парковка:
Наземная
Количество:
1 м/м на 200 кв.м.