Продажа исторического особняка класса А, м.Третьяковская.
ID 62833
Метро: Третьяковская, Новокузнецкая
Округ: Центральный
Площадь: 384 м2
781'000 руб. за м2
10'968$
Предлагается на продажу отреставрированный особняк класса А (ПАМЯТНИК).
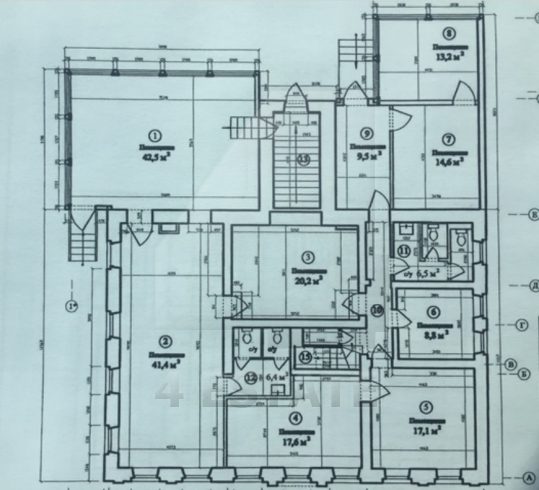
Общая площадь здания 384,4 кв.м.(два этажа и цоколь).
Полностью реконструировано в 2019 году.
Здание двухэтажное с тремя отдельными входами.
Располагается особняк в тихом, камерном переулке Москвы.
В пешей доступности станции метро Третьяковская, Новокузнецкая.
Идеально подходит под представительский офис, мед.центр, бутик, банк и т.д.
Высота потолков 3 м.
Парковка на 4-5 м/м на огороженной территории.
Земельный участок в аренде на 49 лет.
Электрическая мощность 40 кВт.
Оснащено системами климат-контроля для комфортного пребывания.
На данный момент особняк полностью готов к въезду.
Стоимость 300 млн. рублей.
Без комиссии.
Общая площадь здания 384,4 кв.м.(два этажа и цоколь).
Полностью реконструировано в 2019 году.
Здание двухэтажное с тремя отдельными входами.
Располагается особняк в тихом, камерном переулке Москвы.
В пешей доступности станции метро Третьяковская, Новокузнецкая.
Идеально подходит под представительский офис, мед.центр, бутик, банк и т.д.
Высота потолков 3 м.
Парковка на 4-5 м/м на огороженной территории.
Земельный участок в аренде на 49 лет.
Электрическая мощность 40 кВт.
Оснащено системами климат-контроля для комфортного пребывания.
На данный момент особняк полностью готов к въезду.
Стоимость 300 млн. рублей.
Без комиссии.
Расположение
Округ:
Район:
Расстояние до метро:
2 мин пешком
Коммерческие условия
Налогообложение:
УСНО
Характеристики здания
Класс:
A
Общая площадь здания:
384
Этажей в здании:
2
Этаж:
цоколь, 1, 2
Комиссия:
Объект предлагается без комиссии агентства
Тип здания:
Особняк
Планировка:
Смешанная
Состояние отделки:
Ремонт высокого класса
Провайдер:
Билайн
Вентиляция:
Приточно-вытяжная
Кондиционирование:
Сплит-системы
Безопасность:
Видеонаблюдение
Мебель:
Нет
Парковка
Парковка:
Наземная
Количество:
4-5