Продажа банковского помещения, м.Красные ворота.
ID 53758
Метро: Красные Ворота
Округ: Центральный
Площадь: 422 м2
748'508 руб. за м2
10'462$
Предлагается двухуровневое банковское помещение.
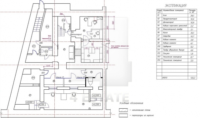
Общая площадь 422 кв.м.(1 этаж 308 кв.м., подвал 112 кв.м.).
На первом этаже: При входе в офис – «зона 24» с установленным банкоматом, далее вход оборудованный шлюзом, далее стойка расепшион, операционный зал на 4 рабочих места и кабинеты сотрудников.
В подвале: кассовый узел на 2 рабочих места кассира с сейфовой комнатой и инкассаторским шлюзом. Депозитарий на 245 ячеек различных размеров.
Инженерные системы: Принудительная приточно – вытяжная вентиляция с водяным подогревом, система кондиционирования воздуха.
Электрические мощности: Установленная 115 кВт, единовременная 61 кВт.
Депозитарий в настоящий момент демонтирован АСВ.
Наземная парковка во дворе.
Стоимость: 350 млн.рублей, с НДС, ТОРГ.
Без комиссии.
Общая площадь 422 кв.м.(1 этаж 308 кв.м., подвал 112 кв.м.).
На первом этаже: При входе в офис – «зона 24» с установленным банкоматом, далее вход оборудованный шлюзом, далее стойка расепшион, операционный зал на 4 рабочих места и кабинеты сотрудников.
В подвале: кассовый узел на 2 рабочих места кассира с сейфовой комнатой и инкассаторским шлюзом. Депозитарий на 245 ячеек различных размеров.
Инженерные системы: Принудительная приточно – вытяжная вентиляция с водяным подогревом, система кондиционирования воздуха.
Электрические мощности: Установленная 115 кВт, единовременная 61 кВт.
Депозитарий в настоящий момент демонтирован АСВ.
Наземная парковка во дворе.
Стоимость: 350 млн.рублей, с НДС, ТОРГ.
Без комиссии.
Расположение
Округ:
Район:
Метро:
Расстояние до метро:
5 мин пешком
Характеристики здания
Класс:
B+
Этажей в здании:
8.0000
Этаж:
0.0000
Комиссия:
Объект предлагается без комиссии агентства
Тип здания:
Административное здание
Планировка:
Смешанная
Состояние отделки:
Готово к въезду
Провайдер:
Билайн
Вентиляция:
Приточно-вытяжная
Кондиционирование:
Сплит-системы
Безопасность:
Видеонаблюдение
Парковка
Парковка:
Наземная
Количество:
2