Продажа банковского особняка класса А, м.Третьяковская.
ID 53400
Метро: Третьяковская
Округ: Центральный
Площадь: 1328 м2
359'284 руб. за м2
5'022$
Предлагается на продажу банковское отдельно стоящее здание класса А.
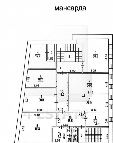
Общая площадь здания 1328 кв.м.
Банк расположен в историческом центре Москвы, в 500-х метрах от Кремля и в 4-х минутах ходьбы от станции метро Третьяковская, первая линия домов.
Здание, изначально спроектированное и построенное как банковское, имеет сертифицированное денежное хранилище, депозитарий, расчётно - кассовые узлы, операционный зал и другие помещения, необходимые для осуществления банковской деятельности. В здании имеется отдельный въезд, оборудованный шлюзом для инкассации.
В помещениях выполнен высококачественный ремонт, предусмотрена удобная и эффективная планировка. Имеется центральная система кондиционирования и вентиляции, охранная и пожарная сигнализация, система видеонаблюдения.
На данный момент полностью свободное к въезду.
Подземная парковка на 4-5 м/м(бесплатно).
Стоимость: 8 млн.$.
Без комиссии.
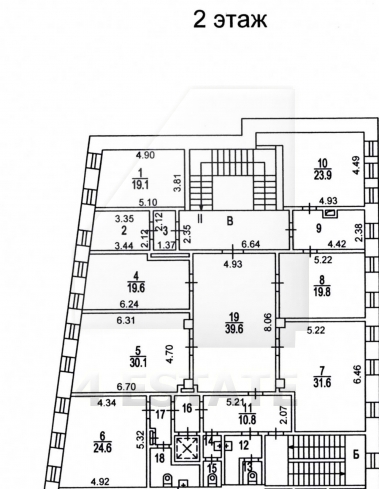
Общая площадь здания 1328 кв.м.
Банк расположен в историческом центре Москвы, в 500-х метрах от Кремля и в 4-х минутах ходьбы от станции метро Третьяковская, первая линия домов.
Здание, изначально спроектированное и построенное как банковское, имеет сертифицированное денежное хранилище, депозитарий, расчётно - кассовые узлы, операционный зал и другие помещения, необходимые для осуществления банковской деятельности. В здании имеется отдельный въезд, оборудованный шлюзом для инкассации.
В помещениях выполнен высококачественный ремонт, предусмотрена удобная и эффективная планировка. Имеется центральная система кондиционирования и вентиляции, охранная и пожарная сигнализация, система видеонаблюдения.
На данный момент полностью свободное к въезду.
Подземная парковка на 4-5 м/м(бесплатно).
Стоимость: 8 млн.$.
Без комиссии.
Расположение
Округ:
Район:
Метро:
Расстояние до метро:
5 мин пешком
Характеристики здания
Класс:
A
Общая площадь здания:
1328
Этажей в здании:
3.0000
Этаж:
0.0000
Комиссия:
Объект предлагается без комиссии агентства
Тип здания:
Особняк
Планировка:
Смешанная
Состояние отделки:
Готово к въезду
Провайдер:
Билайн
Вентиляция:
Приточно-вытяжная
Кондиционирование:
Центральное
Безопасность:
Видеонаблюдение
Парковка
Парковка:
Подземная
Количество:
4