Отреставрированное здание (бизнес-центр) на продажу, м.Ленинский пр-т.
ID 4391
Метро: Ленинский проспект
Округ: Юго-Западный
Площадь: 5282 м2
164'672 руб. за м2
2'302$
Предлагается здание(ОСЗ) класса В+.
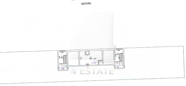
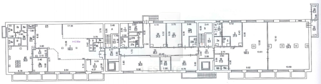
Общая площадь здания 5284 кв.м.
На данный момент бизнес центр сдан арендаторам на 90%(возможен их съезд в течение двух месяцев).
Аренда земли под зданием и парковкой до 2063г.
Наземная парковка: за зданием 11 м/м, перед зданием 12 м/м.
ТЕХНИЧЕСКОЕ ОСНАЩЕНИЕ:
Конструкция здания - железо-бетон.
Количество лифтов – 2 лифта (CLEMAN).
Приточно-вытяжная вентиляция.
Центральное кондиционирование.
Центральное отопление.
Высота перекрытий 3.50 м
Шаг колонн 6.5 * 3.5
Пожаротушение - система.
Стоимость: 190000 руб.за кв.м., возможен торг.
Без комиссии.
Общая площадь здания 5284 кв.м.
На данный момент бизнес центр сдан арендаторам на 90%(возможен их съезд в течение двух месяцев).
Аренда земли под зданием и парковкой до 2063г.
Наземная парковка: за зданием 11 м/м, перед зданием 12 м/м.
ТЕХНИЧЕСКОЕ ОСНАЩЕНИЕ:
Конструкция здания - железо-бетон.
Количество лифтов – 2 лифта (CLEMAN).
Приточно-вытяжная вентиляция.
Центральное кондиционирование.
Центральное отопление.
Высота перекрытий 3.50 м
Шаг колонн 6.5 * 3.5
Пожаротушение - система.
Стоимость: 190000 руб.за кв.м., возможен торг.
Без комиссии.
Расположение
Округ:
Район:
Метро:
Расстояние до метро:
8 мин пешком
Характеристики здания
Класс:
B+
Общая площадь здания:
5282
Этажей в здании:
5.0000
Этаж:
0.0000
Комиссия:
Объект предлагается без комиссии агентства
Тип здания:
Бизнес-центр
Планировка:
Открытая
Состояние отделки:
Готово к въезду
Провайдер:
Билайн
Вентиляция:
Приточно-вытяжная
Кондиционирование:
Центральное
Безопасность:
Организована сиcтема доступа
Парковка
Парковка:
Наземная
Количество:
23