Продажа представительского особняка класса А(ОСЗ), м.Цветной б-р
ID 10645
Метро: Цветной бульвар
Округ: Центральный
Площадь: 2973 м2
353'200 руб. за м2
4'830$
Продается здание класса А.
Общая площадь 2973 кв.м.
Полностью готовое к въезду.
Подойдет финансовой компании или банка, так как в здании имеется кассовый узел, инкассаторский блок, хранилище с депозитарием, зал для клиентов.
Планировка смешанная, но преимущественно кабинетная.
Местоположение: Мещанский район ЦАО г.Москвы.
От м. «Цветной бульвар» несколько минут пешком, чуть дальше от м. «Проспект Мира».
Транспортная доступность: Олимпийский проспект, Садовое кольцо, Цветной бульвар, проспект Мира.
Дата постройки: 1997г.
Изюминка особняка состоит в башни с часами, внутри которой два скоростных лифта (OTIS).
Высококачественная экологичная отделка помещений (соответствует евростандартам).
Высокая безопасность обеспечивается наличием шлюзовой системы, бронированных окон, охраной 24 часа и современным видеонаблюдением.
Цокольный этаж разместил у себя хранилище с депозитарием, столовую и паркинг, рассчитанный на 10 автомобилей.
Плюс имеется наземная парковка, вмещающая до 20 транспортных средств.
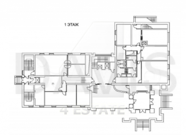
На первом этаже - просторный ресепшн, несколько офисов и операционный зал.
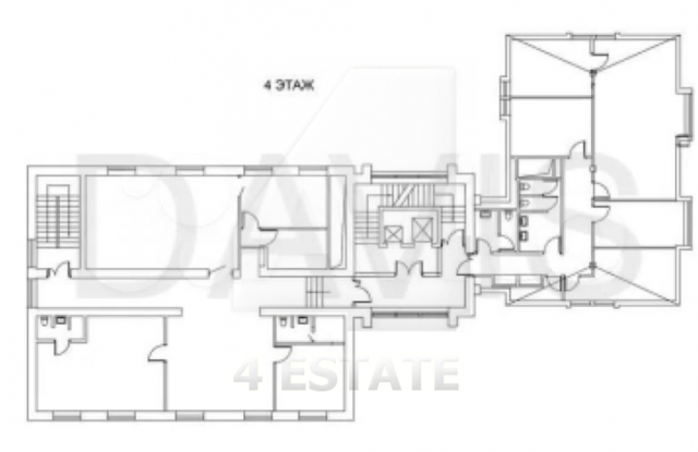
На четвертом этаже – VIP-zone для руководства. Стены отделаны деревом цельных пород.
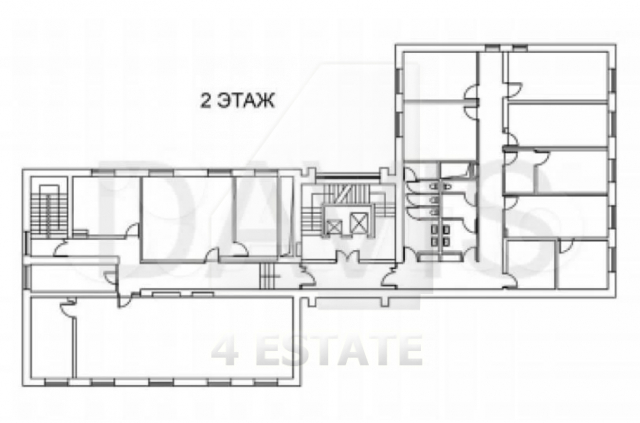
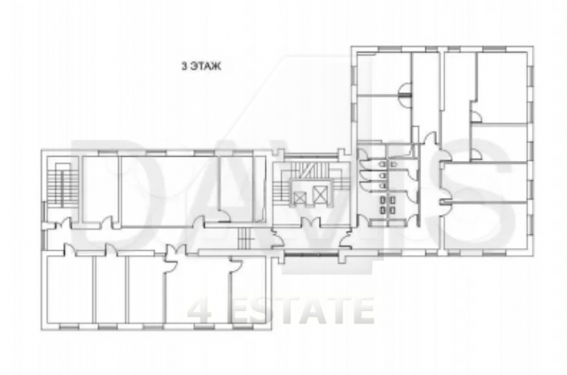
На втором, третьем, пятом этажах - офисы.
Два лифта фирмы OTIS.
Аренда земли под зданием и парковкой 30 соток до 2044г.
Электроснабжение (максимальная мощность 500 кВт).
Источник бесперебойного питания 200 кВт.
Дизель-генераторная установка 250 кВт.
Система контроля доступа и видеонаблюдение.
Стоимость: 1 050 000 000 рублей, возможен торг.
Без комиссии.
Общая площадь 2973 кв.м.
Полностью готовое к въезду.
Подойдет финансовой компании или банка, так как в здании имеется кассовый узел, инкассаторский блок, хранилище с депозитарием, зал для клиентов.
Планировка смешанная, но преимущественно кабинетная.
Местоположение: Мещанский район ЦАО г.Москвы.
От м. «Цветной бульвар» несколько минут пешком, чуть дальше от м. «Проспект Мира».
Транспортная доступность: Олимпийский проспект, Садовое кольцо, Цветной бульвар, проспект Мира.
Дата постройки: 1997г.
Изюминка особняка состоит в башни с часами, внутри которой два скоростных лифта (OTIS).
Высококачественная экологичная отделка помещений (соответствует евростандартам).
Высокая безопасность обеспечивается наличием шлюзовой системы, бронированных окон, охраной 24 часа и современным видеонаблюдением.
Цокольный этаж разместил у себя хранилище с депозитарием, столовую и паркинг, рассчитанный на 10 автомобилей.
Плюс имеется наземная парковка, вмещающая до 20 транспортных средств.
На первом этаже - просторный ресепшн, несколько офисов и операционный зал.
На четвертом этаже – VIP-zone для руководства. Стены отделаны деревом цельных пород.
На втором, третьем, пятом этажах - офисы.
Два лифта фирмы OTIS.
Аренда земли под зданием и парковкой 30 соток до 2044г.
Электроснабжение (максимальная мощность 500 кВт).
Источник бесперебойного питания 200 кВт.
Дизель-генераторная установка 250 кВт.
Система контроля доступа и видеонаблюдение.
Стоимость: 1 050 000 000 рублей, возможен торг.
Без комиссии.
Расположение
Округ:
Район:
Метро:
Расстояние до метро:
7 мин пешком
Характеристики здания
Класс:
A
Общая площадь здания:
2973
Этажей в здании:
4
Этаж:
повал, 1, 2, 3, 4
Комиссия:
Объект предлагается без комиссии агентства
Тип здания:
Особняк
Планировка:
Смешанная
Состояние отделки:
Ремонт высокого класса
Провайдер:
Билайн
Вентиляция:
Приточно-вытяжная
Кондиционирование:
Центральное
Безопасность:
Организована сиcтема доступа
Мебель:
Нет
Парковка
Парковка:
Наземная и подземная
Количество:
30