Представительский особняк класса А, м.Красные ворота.
ID 56684
Метро: Красные Ворота
Округ: Центральный
Площадь: 484 м2
30'000 руб. за м2/год
419$
Предлагается в аренду особняк "Волкова" в составе делового комплекса "Юсупов двор".
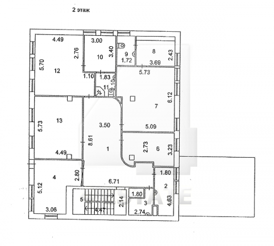
Общая площадь здания: 484 кв.м.(1 этаж - 254 кв.м. и 2 этаж - 230 кв.м.)
Комплекс обладает неповторимым архитектурным стилем, сочетающим в себе традиции дворцового стиля и современные решения внутреннего обустройства.
В помещениях выполнена качественная дорогостоящая отделка.
На втором этаже присутствует VIP зона для двух руководителей со своими кабинетами, переговорной, комнатами отдыха и с/у.
Наземная парковка на 3-4 м/м(бесплатно).
Подземная парковка на 4-12 м/м по 17700 руб.(с НДС) в месяц.
Ставка: 30000 руб.за кв.м.в год, с НДС.
Коммунальные и эксплуатационные платежи составляют 160000-22000 руб.в месяц, в зависимости от сезона.
Без комиссии.
Общая площадь здания: 484 кв.м.(1 этаж - 254 кв.м. и 2 этаж - 230 кв.м.)
Комплекс обладает неповторимым архитектурным стилем, сочетающим в себе традиции дворцового стиля и современные решения внутреннего обустройства.
В помещениях выполнена качественная дорогостоящая отделка.
На втором этаже присутствует VIP зона для двух руководителей со своими кабинетами, переговорной, комнатами отдыха и с/у.
Наземная парковка на 3-4 м/м(бесплатно).
Подземная парковка на 4-12 м/м по 17700 руб.(с НДС) в месяц.
Ставка: 30000 руб.за кв.м.в год, с НДС.
Коммунальные и эксплуатационные платежи составляют 160000-22000 руб.в месяц, в зависимости от сезона.
Без комиссии.
Расположение
Округ:
Район:
Метро:
Расстояние до метро:
5 мин пешком
Коммерческие условия
Налогообложение:
НДС включен
Эксплуатационные расходы:
не включены
Коммунальные платежи:
не включены
Договор аренды:
Прямой
Связь:
Оплачиваются отдельно
Электричество:
Оплачиваются отдельно
Характеристики здания
Класс:
A
Общая площадь здания:
484
Этажей в здании:
2
Этаж:
1, 2
Комиссия:
Объект предлагается без комиссии агентства
Тип здания:
Особняк
Планировка:
Корридорно-кабинетная
Состояние отделки:
Ремонт высокого класса
Провайдер:
Билайн
Вентиляция:
Приточно-вытяжная
Кондиционирование:
Центральное
Безопасность:
Видеонаблюдение
Мебель:
Нет
Парковка
Парковка:
Наземная
Стоимость:
17700 рублей
Количество:
3-4 / 4-12