Продажа особняка класса В+ (не памятник), м.Автозаводская.
ID 9961
Метро: Автозаводская
Округ: Южный
Площадь: 1222 м2
204'500 руб. за м2
2'796$
Предлагается на продажу отдельно-стоящий особняк класса В+..
Общая площадь здания: 1222,6 кв.м.(НЕ ПАМЯТНИК).
Располагается в шаговой доступности от м.Автозаводская (10 мин. пешком).
Здание после реконструкции в 2012 г.
Земельный участок в долгосрочной аренде: 3110 кв.м.
ВРИ: Предпринимательство (Земельные участки, предназначенные для размещения
офисных зданий делового и коммерческого назначения).
Высота потолков: 3.76 м
Современная офисная отделка.
Оснащено лифтом.
Центральная канализационная система.
Электрическая мощность 100 кВт.
Железобетонные перекрытия.
Наземная парковка на 8 м/м, охраняемая закрытая территория.
Здание полностью свободно.
Вид сделки: договор купли-продажи.
Юридическое лицо на упрощенной системе налогообложения.
Стоимость: 250 млн. рублей, УСНО.
Без комиссии.
Общая площадь здания: 1222,6 кв.м.(НЕ ПАМЯТНИК).
Располагается в шаговой доступности от м.Автозаводская (10 мин. пешком).
Здание после реконструкции в 2012 г.
Земельный участок в долгосрочной аренде: 3110 кв.м.
ВРИ: Предпринимательство (Земельные участки, предназначенные для размещения
офисных зданий делового и коммерческого назначения).
Высота потолков: 3.76 м
Современная офисная отделка.
Оснащено лифтом.
Центральная канализационная система.
Электрическая мощность 100 кВт.
Железобетонные перекрытия.
Наземная парковка на 8 м/м, охраняемая закрытая территория.
Здание полностью свободно.
Вид сделки: договор купли-продажи.
Юридическое лицо на упрощенной системе налогообложения.
Стоимость: 250 млн. рублей, УСНО.
Без комиссии.
Коммерческие условия
Налогообложение:
УСНО
Характеристики здания
Класс:
B+
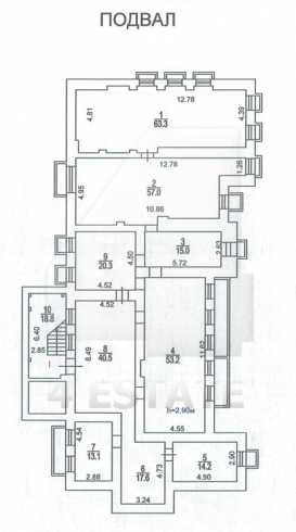
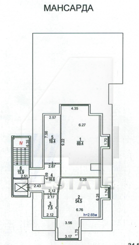
Общая площадь здания:
1222
Этажей в здании:
2
Этаж:
подвал, 1, 2, мансарда
Комиссия:
Объект предлагается без комиссии агентства
Тип здания:
Особняк
Планировка:
Смешанная
Состояние отделки:
Готово к въезду
Провайдер:
Билайн
Вентиляция:
Приточно-вытяжная
Кондиционирование:
Центральное
Безопасность:
Организована сиcтема доступа
Мебель:
Нет
Парковка
Парковка:
Наземная
Количество:
8