Исторический особняк класса А на продажу, м.Таганская.
ID 62847
Метро: Таганская, Римская, Площадь Ильича
Округ: Центральный
Площадь: 452 м2
663'700 руб. за м2
9'320$
Предлагается на продажу реконструированный двухэтажный отдельно стоящий особняк класса А.
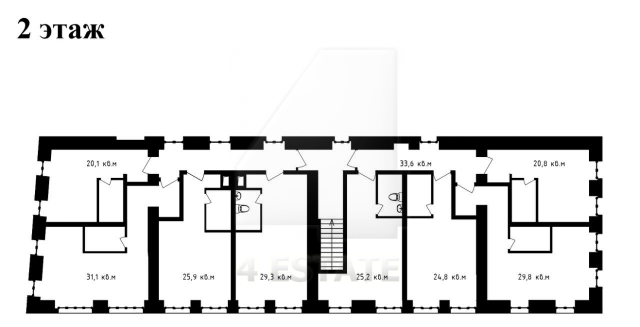
Общая площадь здания: 452 м2.
Объект культурного наследия (памятник архитектуры).
Год постройки: 1927 г.
Полностью отреставрирован в 2025 году, проведен капитальный ремонт.
Располагается здание в 10 мин. пешком от м.Таганская, м.Марксистская и м.Римская.
Имеется внутренний двор с возможностью наземной парковки до 20 м/мест.
Тихое место в центре города располагает к комфортной работе.
Внутренние помещение особняка, в состояние чистовой отделки.
Центральные сети: отопление, горячее и холодное водоснабжение, канализация.
Электрическая мощность 150 кВт.
Здание в собственности, земельный участок в долгосрочной аренде на 49 лет.
Универсальное использование: представительский офис, резиденция, галерея, ресторан, арт-пространство, культурный центр.
Все документы готовы к сделке.
Стоимость: 300 млн. рублей, УСНО.
Без комиссии.
Общая площадь здания: 452 м2.
Объект культурного наследия (памятник архитектуры).
Год постройки: 1927 г.
Полностью отреставрирован в 2025 году, проведен капитальный ремонт.
Располагается здание в 10 мин. пешком от м.Таганская, м.Марксистская и м.Римская.
Имеется внутренний двор с возможностью наземной парковки до 20 м/мест.
Тихое место в центре города располагает к комфортной работе.
Внутренние помещение особняка, в состояние чистовой отделки.
Центральные сети: отопление, горячее и холодное водоснабжение, канализация.
Электрическая мощность 150 кВт.
Здание в собственности, земельный участок в долгосрочной аренде на 49 лет.
Универсальное использование: представительский офис, резиденция, галерея, ресторан, арт-пространство, культурный центр.
Все документы готовы к сделке.
Стоимость: 300 млн. рублей, УСНО.
Без комиссии.
Расположение
Округ:
Район:
Расстояние до метро:
10 мин пешком
Коммерческие условия
Налогообложение:
УСНО
Характеристики здания
Класс:
A
Общая площадь здания:
452
Этажей в здании:
2
Этаж:
1, 2
Комиссия:
Объект предлагается без комиссии агентства
Тип здания:
Особняк
Планировка:
Смешанная
Состояние отделки:
shell&core
Парковка
Парковка:
Наземная
Количество:
20