Продажа презентабельного особняка класса В+, м.Трубная.
ID 62844
Метро: Трубная, Цветной бульвар
Округ: Центральный
Площадь: 1717 м2
436'800 руб. за м2
6'150$
Предлагается к продаже отдельно стоящее административное здание класса В+.
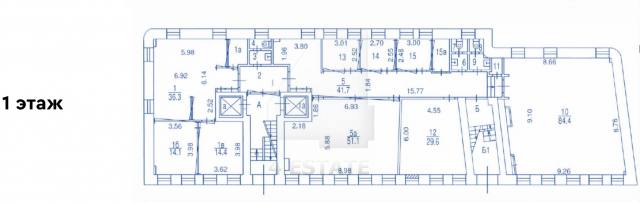
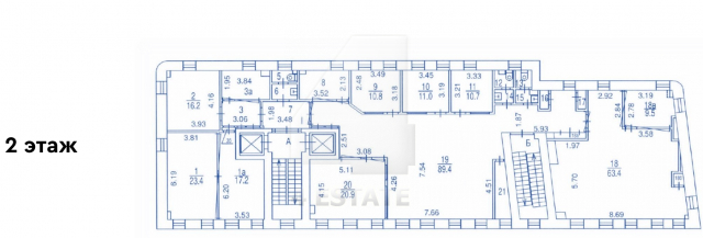
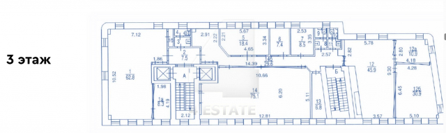
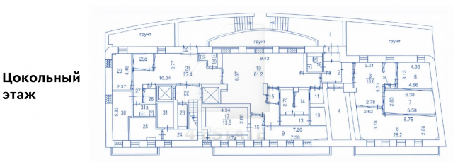
Общая площадь особняка: 1717 кв.м.
Располагается в Тверском районе ЦАО Москвы.
Кирпичный пятиэтажный особняк.
Находится в историческом центре, на второй линии Бульварного кольца в семи минутах пешком от м.Цветной б-р и м.Трубная.
Не является памятником архитектуры.
Объект полностью сдан в аренду (восемь арендаторов), реализуется с условием сохранения текущих арендных отношений на следующие 3 (три) года.
Здание находится в отличном состоянии, капитальный ремонт с заменой перекрытий проведён в 1995 году.
Планировка кабинетная, качественная внутренняя отделка.
Коммуникации центральные, два лифта (установлены в 2023 году).
Наземная парковка на 13 машиномест на прилегающей территории под шлагбаумом.
Земельный участок под зданием (6.04 сот.) в долгосрочной аренде.
Прямая продажа объекта с баланса юридического лица по ДКП.
Стоимость: 750 млн. рублей, НДС включён в стоимость.
Без комиссии.
Общая площадь особняка: 1717 кв.м.
Располагается в Тверском районе ЦАО Москвы.
Кирпичный пятиэтажный особняк.
Находится в историческом центре, на второй линии Бульварного кольца в семи минутах пешком от м.Цветной б-р и м.Трубная.
Не является памятником архитектуры.
Объект полностью сдан в аренду (восемь арендаторов), реализуется с условием сохранения текущих арендных отношений на следующие 3 (три) года.
Здание находится в отличном состоянии, капитальный ремонт с заменой перекрытий проведён в 1995 году.
Планировка кабинетная, качественная внутренняя отделка.
Коммуникации центральные, два лифта (установлены в 2023 году).
Наземная парковка на 13 машиномест на прилегающей территории под шлагбаумом.
Земельный участок под зданием (6.04 сот.) в долгосрочной аренде.
Прямая продажа объекта с баланса юридического лица по ДКП.
Стоимость: 750 млн. рублей, НДС включён в стоимость.
Без комиссии.
Расположение
Округ:
Район:
Метро:
Расстояние до метро:
5 мин пешком
Коммерческие условия
Налогообложение:
НДС включен
Характеристики здания
Класс:
B+
Общая площадь здания:
1717
Этажей в здании:
5
Этаж:
1, 2, 3, 4, 5
Комиссия:
Объект предлагается без комиссии агентства
Тип здания:
Особняк
Планировка:
Корридорно-кабинетная
Состояние отделки:
Готово к въезду
Провайдер:
Билайн
Вентиляция:
Приточно-вытяжная
Кондиционирование:
Сплит-системы
Безопасность:
Видеонаблюдение
Мебель:
Нет
Парковка
Парковка:
Наземная
Количество:
13