Представительский особняк класса А на продажу, м.Смоленская.
ID 53321
Метро: Парк культуры
Округ: Центральный
Площадь: 805 м2
508'986 руб. за м2
6'960$
Предлагается на продажу презентабельный особняк класса «А».
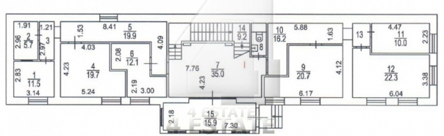
Общая площадь здания 805 кв.м.(4 уровня: подвал - 156,6 кв.м.; 1 этаж - 206,8 кв.м.; 2 этаж - 220 кв.м.; 3 этаж - 221 кв.м.;
дополнительно(бонус) 216,4 м2 – терраса(плоская кровля с выходом с 3-го этажа)
Презентабельная входная группа, холл и лестничная клетка выполнены из гранита. Выделенная зона руководства. Кухня. Несколько переговорных и конференц зал.
Сдается только целиком все здание.
Высота потолков на всех этажах - 3 метра.
Парковка наземная на 8 машин за шлагбаумом(включена). Высокоскоростной интернет, охранная сигнализация, система видеонаблюдения - полный видеоконтроль внешнего периметра и входа в здание.
Выделенная мощность электричества - 135 квт.
Ставка: 450 млн. руб.за кв.м., торг.
Без комиссии.
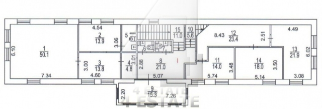
Общая площадь здания 805 кв.м.(4 уровня: подвал - 156,6 кв.м.; 1 этаж - 206,8 кв.м.; 2 этаж - 220 кв.м.; 3 этаж - 221 кв.м.;
дополнительно(бонус) 216,4 м2 – терраса(плоская кровля с выходом с 3-го этажа)
Презентабельная входная группа, холл и лестничная клетка выполнены из гранита. Выделенная зона руководства. Кухня. Несколько переговорных и конференц зал.
Сдается только целиком все здание.
Высота потолков на всех этажах - 3 метра.
Парковка наземная на 8 машин за шлагбаумом(включена). Высокоскоростной интернет, охранная сигнализация, система видеонаблюдения - полный видеоконтроль внешнего периметра и входа в здание.
Выделенная мощность электричества - 135 квт.
Ставка: 450 млн. руб.за кв.м., торг.
Без комиссии.
Расположение
Округ:
Район:
Метро:
Расстояние до метро:
7 мин пешком
Характеристики здания
Класс:
B+
Общая площадь здания:
805
Этажей в здании:
3.0000
Этаж:
0.0000
Комиссия:
Объект предлагается без комиссии агентства
Тип здания:
Особняк
Планировка:
Смешанная
Состояние отделки:
Ремонт высокого класса
Вентиляция:
Приточно-вытяжная
Кондиционирование:
Сплит-системы
Безопасность:
Видеонаблюдение
Парковка
Парковка:
Наземная
Количество:
8