Новый особняк на продажу, м.Красносельская.
ID 36767
Метро: Красносельская
Округ: Центральный
Площадь: 1928 м2
310'781 руб. за м2
4'296$
Выставлено на продажу торгово-офисное здание класса А на первой линии домов рядом с м.Красносельская.
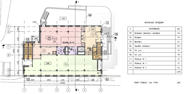
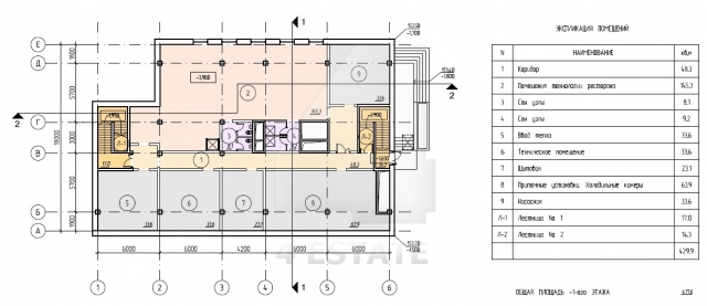
Общая площадь особняка 1928 кв.м. и состоит из трех этажей с цоколем (эксплуатируемый), присутствуют шесть отдельных входов в здание.
Возможность использования здания:
1-й этаж - ресторан с технологией и торговое помещение. Каждое с отдельным входом. Возможна организация летней террасы ресторана.
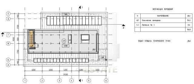
Цоколь - холодильные камеры, вентиляционные установки, тех помещения.
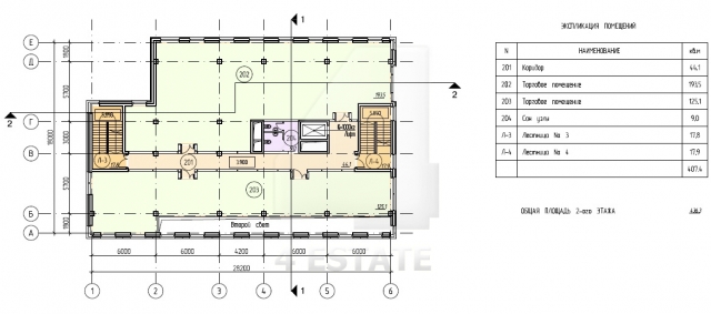
2-й этаж - торговые помещения (или ПСН). Доступ осуществляется по независимым лестничным маршам с 1-го этажа.
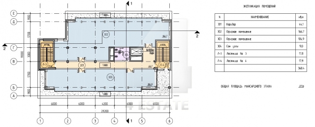
3-й этаж - офисные помещения, доступ через ресепшн 1-го этажа и лифт.
Заканчивается реконструкция, проведена замена всех коммуникаций, лифтового оборудования и установлен новый фасад.
Высота потолков 3,6 м. Свободная планировка этажей. На 3-м этаже эксплуатируемая кровля (терраса).
Инженерия: приточно-вытяжная вентиляция (в ресторане – индивидуальная), кондиционирование, противопожарная сигнализация. Здание предоставляется без отделки.
Наземная парковка на охраняемой территории на 20 м/м.
Полностью готовность территории к 01.09.2014г.
Стоимость: 10 млн.$, возможен торг.
Без комиссии.
Общая площадь особняка 1928 кв.м. и состоит из трех этажей с цоколем (эксплуатируемый), присутствуют шесть отдельных входов в здание.
Возможность использования здания:
1-й этаж - ресторан с технологией и торговое помещение. Каждое с отдельным входом. Возможна организация летней террасы ресторана.
Цоколь - холодильные камеры, вентиляционные установки, тех помещения.
2-й этаж - торговые помещения (или ПСН). Доступ осуществляется по независимым лестничным маршам с 1-го этажа.
3-й этаж - офисные помещения, доступ через ресепшн 1-го этажа и лифт.
Заканчивается реконструкция, проведена замена всех коммуникаций, лифтового оборудования и установлен новый фасад.
Высота потолков 3,6 м. Свободная планировка этажей. На 3-м этаже эксплуатируемая кровля (терраса).
Инженерия: приточно-вытяжная вентиляция (в ресторане – индивидуальная), кондиционирование, противопожарная сигнализация. Здание предоставляется без отделки.
Наземная парковка на охраняемой территории на 20 м/м.
Полностью готовность территории к 01.09.2014г.
Стоимость: 10 млн.$, возможен торг.
Без комиссии.
Расположение
Округ:
Район:
Метро:
Расстояние до метро:
5 мин пешком
Характеристики здания
Класс:
A
Общая площадь здания:
1928
Этажей в здании:
3.0000
Этаж:
0.0000
Комиссия:
Объект предлагается без комиссии агентства
Тип здания:
Особняк
Планировка:
Открытая
Состояние отделки:
shell&core
Вентиляция:
Приточно-вытяжная
Кондиционирование:
Центральное
Безопасность:
Организована сиcтема доступа
Парковка
Парковка:
Наземная
Количество:
20