Продажа ПСН с отдельным входом класса В+, м. Цветной бульвар.
ID 36198
Метро: Сухаревская
Округ: Центральный
Площадь: 576 м2
754'496 руб. за м2
10'428$
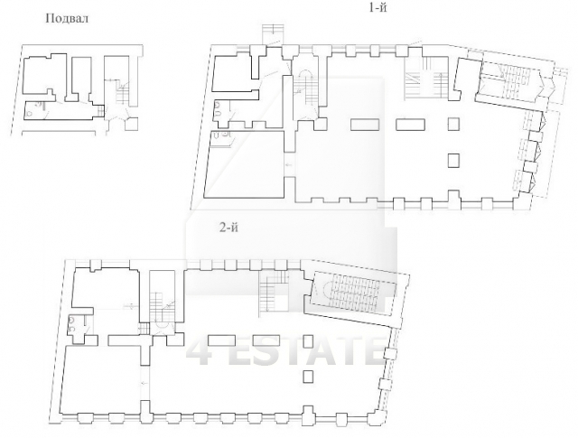
Предлагается на продажу ПСН с 4-мя отдельными входами, общей площадью: 576 кв. м., в шаговой доступности от м. Цветной бульвар. Имеется 2 входа с первой линии домов и 2 со двора, помещение расположено на 1-м и 2-м этажах делового центра класса В+, планировка свободная, помещение в состоянии под чистовую отделку, выделенная мощность 120 кВт, высота потолков 3,5 м., перекрытия железобетонные, стены кирпичные. Стоимость: 12600$ за кв. м., форма сделки: договор купли-продажи.
Без комиссии!
Без комиссии!
Расположение
Округ:
Район:
Метро:
Расстояние до метро:
8 мин пешком
Характеристики здания
Класс:
B+
Общая площадь здания:
1500
Этажей в здании:
4.0000
Этаж:
0.0000
Комиссия:
Объект предлагается без комиссии агентства
Тип здания:
Бизнес-центр
Планировка:
Открытая
Состояние отделки:
shell&core
Провайдер:
Билайн
Вентиляция:
Приточно-вытяжная
Кондиционирование:
Центральное
Безопасность:
Организована сиcтема доступа
Парковка
Парковка:
Наземная