Продажа презентабельного особняка класса А, м. Китай-город.
ID 26328
Метро: Китай-город
Округ: Центральный
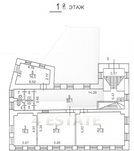
Площадь: 592 м2
658'687 руб. за м2
9'206$
Предлагается офисный особняк с огороженной территорией на 4 м/м.
Электрическая мощность 110 кВт.
Аренда земли под зданием и парковкой до 2025г.
Стоимость: 6,5 млн.$, без торга.
Без комиссии.
Электрическая мощность 110 кВт.
Аренда земли под зданием и парковкой до 2025г.
Стоимость: 6,5 млн.$, без торга.
Без комиссии.
Расположение
Округ:
Район:
Метро:
Расстояние до метро:
7 мин пешком
Характеристики здания
Класс:
A
Общая площадь здания:
592
Этажей в здании:
2.0000
Этаж:
0.0000
Комиссия:
Объект предлагается без комиссии агентства
Тип здания:
Особняк
Планировка:
Смешанная
Состояние отделки:
Готово к въезду
Провайдер:
Билайн
Вентиляция:
Приточно-вытяжная
Кондиционирование:
Сплит-системы
Безопасность:
Организована сиcтема доступа
Парковка
Парковка:
Наземная
Количество:
4