Продажа торгового центра в ЦАО, м.Октябрьская.
ID 23799
Метро: Октябрьская
Округ: Центральный
Площадь: 7261 м2
455'093 руб. за м2
6'223$
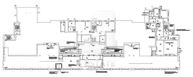
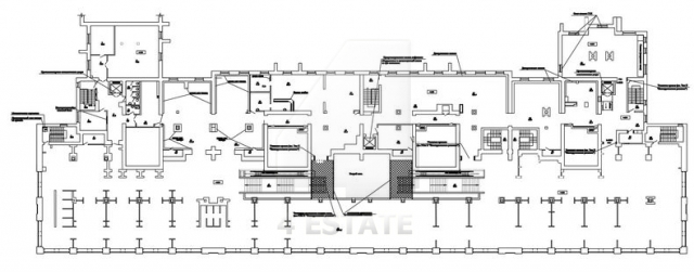
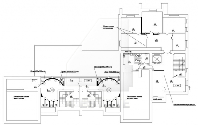
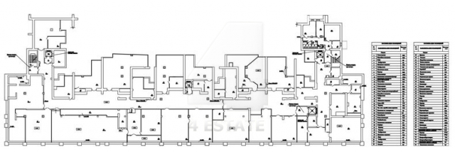
Предлагается на продажу отдельно-стоящее здание(7261 кв.м.) на первой линии домов. В настоящее время полностью используется как торговый центр(возможно использовать как арендный бизнес, так и под свои нужды). Большой пешеходный и автомобильный трафик.
Здание построено в 1991г.
Капитальный ремонт в 2006г.
Аренда земли под зданием(0,22 Га) до конца 2013г. с пролонгацией.
Вид сделки обсуждается на переговорах.
Стоимость 55 млн.$, возможен торг.
Без комиссии.
Здание построено в 1991г.
Капитальный ремонт в 2006г.
Аренда земли под зданием(0,22 Га) до конца 2013г. с пролонгацией.
Вид сделки обсуждается на переговорах.
Стоимость 55 млн.$, возможен торг.
Без комиссии.
Расположение
Округ:
Район:
Метро:
Расстояние до метро:
6 мин пешком
Характеристики здания
Класс:
A
Общая площадь здания:
7261
Этажей в здании:
2.0000
Этаж:
0.0000
Комиссия:
Объект предлагается без комиссии агентства
Тип здания:
Административное здание
Планировка:
Смешанная
Состояние отделки:
Ремонт высокого класса
Провайдер:
Билайн
Вентиляция:
Приточно-вытяжная
Кондиционирование:
Центральное
Безопасность:
Организована сиcтема доступа