Аренда особняка, м.Сухаревская
ID 62828
Метро: Сухаревская, Комсомольская
Округ: Центральный
Площадь: 914 м2
34'000 руб. за м2/год
477$
Офисный особняк расположен в Красносельском районе, Центрального округа Москвы.
В шаговой доступности от станций метро Сухаревская и Комсомольская.
Транспортную доступность обеспечивает близость Садового кольца, парковка стихийная, вокруг здания на 10-15 м/м.
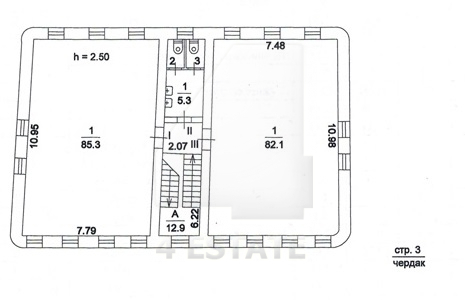
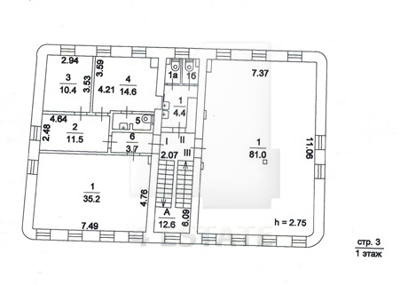
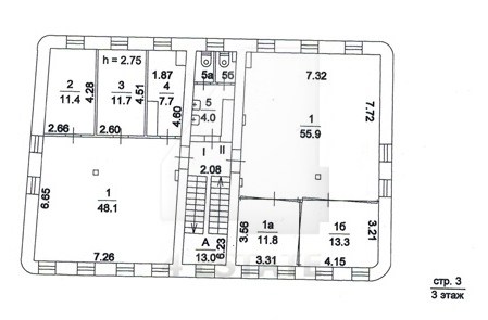
Здание общей площадью 914 кв.м, выполнена стандартная отделка, планировка смешанная.
Есть комната для охраны оборудована системой видеонаблюдения.
Здание оборудовано центральной вентиляцией, кондиционированием, системами сигнализации и пожаротушения , волоконно- оптическим кабелем.
Электрическая мощность 120 кВт.
Ставка: 2.6 млн. рублей в месяц, УСН (5%).
Без комиссии.
В шаговой доступности от станций метро Сухаревская и Комсомольская.
Транспортную доступность обеспечивает близость Садового кольца, парковка стихийная, вокруг здания на 10-15 м/м.
Здание общей площадью 914 кв.м, выполнена стандартная отделка, планировка смешанная.
Есть комната для охраны оборудована системой видеонаблюдения.
Здание оборудовано центральной вентиляцией, кондиционированием, системами сигнализации и пожаротушения , волоконно- оптическим кабелем.
Электрическая мощность 120 кВт.
Ставка: 2.6 млн. рублей в месяц, УСН (5%).
Без комиссии.
Расположение
Округ:
Район:
Метро:
Расстояние до метро:
10 мин пешком
Коммерческие условия
Налогообложение:
УСНО
Коммунальные платежи:
не включены
Договор аренды:
Прямой
Связь:
Оплачиваются отдельно
Электричество:
Оплачиваются отдельно
Характеристики здания
Класс:
B+
Общая площадь здания:
914
Комиссия:
Объект предлагается без комиссии агентства
Тип здания:
Особняк
Планировка:
Смешанная
Состояние отделки:
Готово к въезду
Кондиционирование:
Сплит-системы
Безопасность:
Видеонаблюдение
Мебель:
Нет
Парковка
Парковка:
Стихийная
Количество:
10