Аренда банковского помещения с отд. входом, м.Маяковская.
ID 62677
Метро: Маяковская
Округ: Центральный
Площадь: 630 м2
34'300 руб. за м2/год
482$
Аренда банковского помещения в офисно-жилом доме.
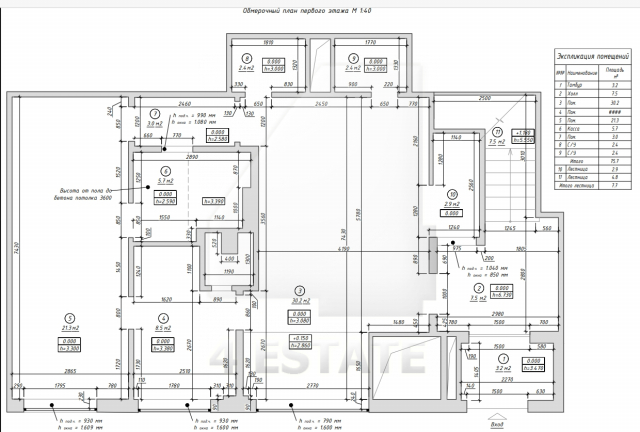
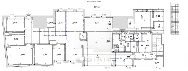
Общая площадь помещения: 630 кв.м. (1 этаж - 84 кв.м. и 2 этаж - 546 кв.м.).
Располагается в пяти минутах пешком от м.Маяковская.
Высота потолков от 2,8 м. до З м.
Электрическая мощность: 60 кВт
Поэтажное перекрытие: железобетон.
Вход в здание с первой линии.
Ранее помещение арендовал банк, есть кассы, депозитарий, хранилище и т.п.
Возможность использовать под любые виды деятельности.
Городская наземная парковка.
Ставка аренды: 1,8 млн. рублей в месяц, УСНО, коммуналка отдельно.
Без комиссии.
Общая площадь помещения: 630 кв.м. (1 этаж - 84 кв.м. и 2 этаж - 546 кв.м.).
Располагается в пяти минутах пешком от м.Маяковская.
Высота потолков от 2,8 м. до З м.
Электрическая мощность: 60 кВт
Поэтажное перекрытие: железобетон.
Вход в здание с первой линии.
Ранее помещение арендовал банк, есть кассы, депозитарий, хранилище и т.п.
Возможность использовать под любые виды деятельности.
Городская наземная парковка.
Ставка аренды: 1,8 млн. рублей в месяц, УСНО, коммуналка отдельно.
Без комиссии.
Коммерческие условия
Налогообложение:
УСНО
Эксплуатационные расходы:
не включены
Коммунальные платежи:
не включены
Договор аренды:
Прямой
Связь:
Оплачиваются отдельно
Электричество:
Оплачиваются отдельно
Характеристики здания
Класс:
A
Этажей в здании:
7
Этаж:
1 и 2
Комиссия:
Объект предлагается без комиссии агентства
Тип здания:
Жилой дом
Планировка:
Смешанная
Состояние отделки:
Требуется косметический ремонт
Провайдер:
Билайн
Вентиляция:
Приточно-вытяжная
Кондиционирование:
Сплит-системы
Безопасность:
Организована сиcтема доступа
Мебель:
Нет
Парковка
Парковка:
Наземная