Аренда ПСН,м.Тверская
ID 62413
Метро: Тверская, Пушкинская, Чеховская
Округ: Центральный
Площадь: 399 м2
34'835 руб. за м2/год
489$
В аренду предлагается площадь свободного назначения, расположенное на 1-й линии домов.
В шаговой доступности находятся станции метро Тверская, Чеховская и Пушкинская.
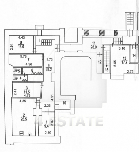
Помещение общей площадью 399,6 кв. м. (1 этаж 165,9, антресоль 1 этажа 63,6, подвал 170,1).
Отдельный вход с улицы Тверская.
Имеется зона разгрузки, а также отдельный вход со стороны двора.
Во дворе охраняемая парковка.
Открытая планировка с двумя торговыми залами на 1 этаже и офисной частью на антресоли и в подвале.
Хорошая визуальная доступность и рекламный потенциал.
Презентабельный внешний вид, большие витринные окна, хорошее торговое окружение.
Арендная плата 1 160 000 в месяц, включая НДС.
В шаговой доступности находятся станции метро Тверская, Чеховская и Пушкинская.
Помещение общей площадью 399,6 кв. м. (1 этаж 165,9, антресоль 1 этажа 63,6, подвал 170,1).
Отдельный вход с улицы Тверская.
Имеется зона разгрузки, а также отдельный вход со стороны двора.
Во дворе охраняемая парковка.
Открытая планировка с двумя торговыми залами на 1 этаже и офисной частью на антресоли и в подвале.
Хорошая визуальная доступность и рекламный потенциал.
Презентабельный внешний вид, большие витринные окна, хорошее торговое окружение.
Арендная плата 1 160 000 в месяц, включая НДС.
Расположение
Округ:
Район:
Расстояние до метро:
3 мин пешком
Коммерческие условия
Налогообложение:
НДС включен
Эксплуатационные расходы:
не включены
Коммунальные платежи:
не включены
Договор аренды:
Прямой
Связь:
Оплачиваются отдельно
Электричество:
Оплачиваются отдельно
Характеристики здания
Класс:
A
Этажей в здании:
10
Этаж:
подвал, 1, антресоль
Комиссия:
Объект предлагается без комиссии агентства
Тип здания:
Жилой дом / Торговые помещения
Планировка:
Смешанная
Состояние отделки:
Готово к въезду
Вентиляция:
Приточно-вытяжная
Кондиционирование:
Сплит-системы
Безопасность:
Организована сиcтема доступа
Парковка
Парковка:
Наземная