Аренда банковского особняка, м.Фрунзенская.
ID 58626
Метро: Фрунзенская, Киевская
Округ: Центральный
Площадь: 668 м2
27'000 руб. за м2/год
377$
В аренду предлагается отдельно стоящий особняк класса B.
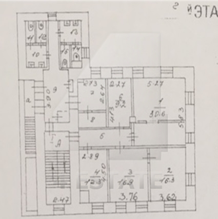
Общая площадь здания 668,9 кв.м.(3 этажа, цоколь и мансарда).
Здание полностью оборудовано под банк, возможно другое применение.
Год постройки: 1880 (не памятник).
Реконструкция здания: 2000 г.
Земельный участок в долгосрочной аренде.
Современные коммуникации.
Нагрузка на перекрытия: 800 кг/м2.
Высота потолка в чистоте: 3,0 м.
Электрическая мощность: 80 кВт.
Кабинетная планировка.
Наземная парковка 5 м/м.
Ставка аренды: 27000 руб. за кв.м. в год, с НДС и эксплуатацией, ком. отдельно.
Без комиссии.
Общая площадь здания 668,9 кв.м.(3 этажа, цоколь и мансарда).
Здание полностью оборудовано под банк, возможно другое применение.
Год постройки: 1880 (не памятник).
Реконструкция здания: 2000 г.
Земельный участок в долгосрочной аренде.
Современные коммуникации.
Нагрузка на перекрытия: 800 кг/м2.
Высота потолка в чистоте: 3,0 м.
Электрическая мощность: 80 кВт.
Кабинетная планировка.
Наземная парковка 5 м/м.
Ставка аренды: 27000 руб. за кв.м. в год, с НДС и эксплуатацией, ком. отдельно.
Без комиссии.
Расположение
Округ:
Район:
Метро:
Расстояние до метро:
15 мин пешком
Коммерческие условия
Налогообложение:
НДС включен
Эксплуатационные расходы:
включены
Коммунальные платежи:
включены
Договор аренды:
Прямой
Связь:
Оплачиваются отдельно
Электричество:
Оплачиваются отдельно
Характеристики здания
Класс:
B+
Общая площадь здания:
668
Этажей в здании:
3
Этаж:
цоколь, 1, 2, 3
Комиссия:
Объект предлагается без комиссии агентства
Тип здания:
Особняк
Планировка:
Корридорно-кабинетная
Состояние отделки:
Готово к въезду
Провайдер:
Билайн
Вентиляция:
Приточно-вытяжная
Кондиционирование:
Сплит-системы
Безопасность:
Организована сиcтема доступа
Мебель:
Частично
Парковка
Парковка:
Наземная
Количество:
5