Аренда офиса в бизнес центре класса В, м.Электрозаводская.
ID 48022
Метро: Электрозаводская
Округ: Центральный
Площадь: 101, 370, 667 м2
20'000 руб. за м2/год
265$
Бизнес центр класса В «Рубцовский» .
Общая площадь здания: 12000 кв.м.
Располагается в семи минутах пешком от м.Электрозаводская в Центральном округе Москвы,на берегу реки Яузы.
Бизнес центр класса В «Рубцовский» .- это массивное 22-этажное здание, расположено на первой линии Рубцовской набережной.
Обладает удобным подъездом и большим паркингом (на 500 м/м) перед фасадом.
Последние 4 года на Рубцовской набережной идут масштабные преобразования и
реорганизация ближайших промзон.
В результате которых в радиусе 300 метров от Бизнес-центра «Рубцовский» открылась новая станция метро «Электрозаводская» Большой кольцевой линии (БКЛ).
Сейчас ведутся работы по реорганизации соседней промзоны.
Рядом построен ЖК «Резиденция Архитекторов» площадью более 170 000 м2.
В нем создана собственная инфраструктура, включающая детский сад, торгово-развлекательные комплексы, рестораны и кафе, а также подземный паркинг.
В 2021 году было завершено благоустройство всей Рубцовской набережной.
Комфорт в работы в здании обеспечивает профессиональная управляющая компания.
Круглосуточная охрана.
Доступ в здание в любое время суток.
Скоростные лифты Sigma.
Качественная отделка мест общего пользования.
Актуальные площади в аренду:
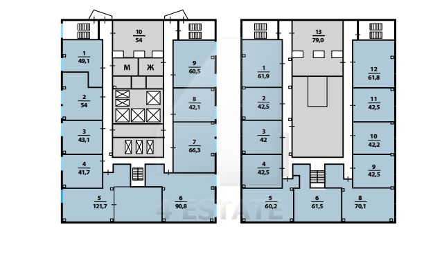
3 этаж - 101 кв.м., смешанная планировка.
4 этаж - 667 кв.м., смешанная планировка.
9 этаж - 370 кв.м., смешанная планировка.
Ставка: 200000 руб. кв.м. в год(все вкл.), коммуналка отдельно.
Без комиссии.
Общая площадь здания: 12000 кв.м.
Располагается в семи минутах пешком от м.Электрозаводская в Центральном округе Москвы,на берегу реки Яузы.
Бизнес центр класса В «Рубцовский» .- это массивное 22-этажное здание, расположено на первой линии Рубцовской набережной.
Обладает удобным подъездом и большим паркингом (на 500 м/м) перед фасадом.
Последние 4 года на Рубцовской набережной идут масштабные преобразования и
реорганизация ближайших промзон.
В результате которых в радиусе 300 метров от Бизнес-центра «Рубцовский» открылась новая станция метро «Электрозаводская» Большой кольцевой линии (БКЛ).
Сейчас ведутся работы по реорганизации соседней промзоны.
Рядом построен ЖК «Резиденция Архитекторов» площадью более 170 000 м2.
В нем создана собственная инфраструктура, включающая детский сад, торгово-развлекательные комплексы, рестораны и кафе, а также подземный паркинг.
В 2021 году было завершено благоустройство всей Рубцовской набережной.
Комфорт в работы в здании обеспечивает профессиональная управляющая компания.
Круглосуточная охрана.
Доступ в здание в любое время суток.
Скоростные лифты Sigma.
Качественная отделка мест общего пользования.
Актуальные площади в аренду:
3 этаж - 101 кв.м., смешанная планировка.
4 этаж - 667 кв.м., смешанная планировка.
9 этаж - 370 кв.м., смешанная планировка.
Ставка: 200000 руб. кв.м. в год(все вкл.), коммуналка отдельно.
Без комиссии.
Расположение
Округ:
Район:
Метро:
Расстояние до метро:
7 мин пешком
Коммерческие условия
Налогообложение:
НДС включен
Эксплуатационные расходы:
включены
Коммунальные платежи:
не включены
Договор аренды:
Прямой
Связь:
Оплачиваются отдельно
Электричество:
Оплачиваются отдельно
Характеристики здания
Класс:
B
Общая площадь здания:
12000
Этажей в здании:
22
Этаж:
13.0000
Комиссия:
Объект предлагается без комиссии агентства
Тип здания:
Бизнес-центр
Планировка:
Корридорно-кабинетная
Состояние отделки:
Готово к въезду
Провайдер:
Билайн
Вентиляция:
Приточно-вытяжная
Кондиционирование:
Центральное
Безопасность:
Вход по карточкам
Мебель:
Нет
Парковка
Парковка:
Наземная
Стоимость:
10000 рублей
Количество:
1 м/м на 100 кв.м.