Помещения с отдельным входом в ЖК "Садовые кварталы", м.Фрунзенская.
ID 39552
Метро: Фрунзенская
Округ: Центральный
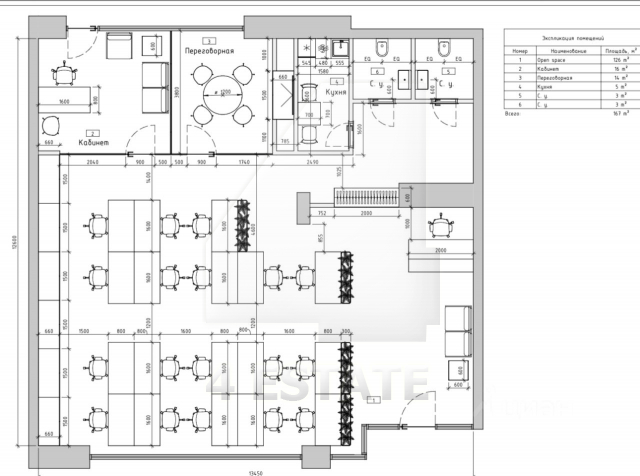
Площадь: 166 м2
86'000 руб. за м2/год
1'208$
Новый элитный жилой комплекс "Садовые кварталы".
Располагается в шаговой доступности от метро Фрунзенская (5 минут пешком).
Территория вокруг дома полностью готова к эксплуатации.
1 этаж - 166 кв.м., смешанная планировка, отдельный вход со двора, витринные окна.
Выполнена высококачественная отделка.
Высота потолка 3,6 м.
Электрическая мощность 33 кВт.
Подземная парковка (платная).
Ставка: 86000 руб. за кв.м.в год, УСНО, коммуналка отдельно.
Без комиссии.
Располагается в шаговой доступности от метро Фрунзенская (5 минут пешком).
Территория вокруг дома полностью готова к эксплуатации.
1 этаж - 166 кв.м., смешанная планировка, отдельный вход со двора, витринные окна.
Выполнена высококачественная отделка.
Высота потолка 3,6 м.
Электрическая мощность 33 кВт.
Подземная парковка (платная).
Ставка: 86000 руб. за кв.м.в год, УСНО, коммуналка отдельно.
Без комиссии.
Расположение
Округ:
Район:
Метро:
Расстояние до метро:
5 мин пешком
Коммерческие условия
Налогообложение:
УСНО
Эксплуатационные расходы:
не включены
Коммунальные платежи:
не включены
Договор аренды:
Прямой
Связь:
Оплачиваются отдельно
Электричество:
Оплачиваются отдельно
Характеристики здания
Класс:
Премиум
Этажей в здании:
10
Этаж:
1
Комиссия:
Объект предлагается без комиссии агентства
Тип здания:
Жилой дом
Планировка:
Открытая
Состояние отделки:
Ремонт высокого класса
Провайдер:
Билайн
Вентиляция:
Приточно-вытяжная
Кондиционирование:
Центральное
Безопасность:
Видеонаблюдение
Мебель:
Нет
Парковка
Парковка:
Подземная
Стоимость:
30000 рублей
Количество:
1 м/м на 100 кв.м.