Аренда офисов в новом бизнес-центре "Красносельский", м.Красносельская.
ID 36042
Метро: Красносельская
Округ: Центральный
Площадь: 575 м2
45'150 руб. за м2/год
634$
Бизнес центр "Красносельский" - это офисное здание категории А класса.
Находится он в непосредственной близости к Садовому кольцу и ТТК.
Удобная шаговая доступность от метро Красносельская
Установлены современные инженерные системы: вентиляция: приточно-вытяжная. кондиционирование: центральное. Безопасность: видеонаблюдение, контроль-доступа, круглосуточная охрана. Лифты: 4.
Вакантные площади:
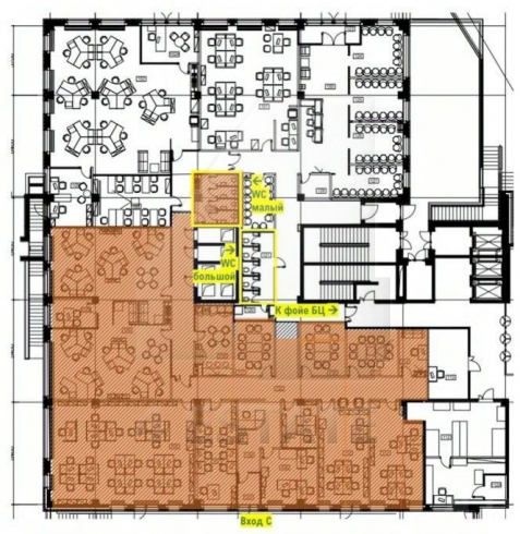
1-й этаж - 575 кв.м. готовый к въезду, с качественным ремонтом и современной мебелью.
Есть зона кухни, санузлы, серверная.
Арендная плата 2 163 060 рублей в месяц, включая НДС и эксплуатационные расходы.
Находится он в непосредственной близости к Садовому кольцу и ТТК.
Удобная шаговая доступность от метро Красносельская
Установлены современные инженерные системы: вентиляция: приточно-вытяжная. кондиционирование: центральное. Безопасность: видеонаблюдение, контроль-доступа, круглосуточная охрана. Лифты: 4.
Вакантные площади:
1-й этаж - 575 кв.м. готовый к въезду, с качественным ремонтом и современной мебелью.
Есть зона кухни, санузлы, серверная.
Арендная плата 2 163 060 рублей в месяц, включая НДС и эксплуатационные расходы.
Расположение
Округ:
Район:
Метро:
Расстояние до метро:
8 мин пешком
Коммерческие условия
Налогообложение:
НДС включен
Эксплуатационные расходы:
включены
Коммунальные платежи:
не включены
Договор аренды:
Прямой
Связь:
Оплачиваются отдельно
Электричество:
Оплачиваются отдельно
Характеристики здания
Класс:
A
Общая площадь здания:
29000
Этажей в здании:
7
Этаж:
1
Комиссия:
Объект предлагается без комиссии агентства
Тип здания:
Бизнес-центр
Планировка:
Смешанная
Состояние отделки:
Ремонт высокого класса
Провайдер:
Билайн
Вентиляция:
Приточно-вытяжная
Кондиционирование:
Центральное
Безопасность:
Видеонаблюдение
Мебель:
Есть
Парковка
Парковка:
Наземная и подземная