Готовые офисы в бизнес-центре класса A, м. Театральная.
ID 2573
Метро: Театральная
Округ: Центральный
Площадь: 177 м2
51'120 руб. за м2/год
718$
Деловой центр класса В+, в непосредственной близости от м.Чеховская.
Отличный выбор тех, кто ценит качество и высокий уровень комфорта.
Безопасность каждого из арендаторов обеспечивается круглосуточной охраной и системами видеонаблюдения.
Актуальные помещения сдаваемые в аренду:
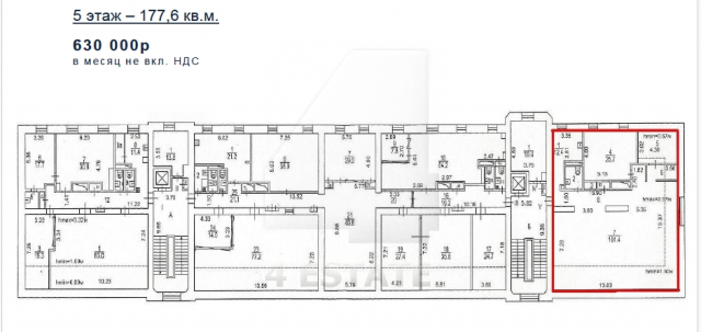
5 этаж - 177.6 кв.м., смешанная планировка, сделан качественный ремонт, потолки 3.4 метра - 756 000 рублей в месяц.
Возможно арендовать вместе.
Арендная ставка включает НДС и коммунальные платежи.
Без комиссии.
Отличный выбор тех, кто ценит качество и высокий уровень комфорта.
Безопасность каждого из арендаторов обеспечивается круглосуточной охраной и системами видеонаблюдения.
Актуальные помещения сдаваемые в аренду:
5 этаж - 177.6 кв.м., смешанная планировка, сделан качественный ремонт, потолки 3.4 метра - 756 000 рублей в месяц.
Возможно арендовать вместе.
Арендная ставка включает НДС и коммунальные платежи.
Без комиссии.
Расположение
Округ:
Район:
Метро:
Расстояние до метро:
5 мин пешком
Коммерческие условия
Налогообложение:
НДС включен
Эксплуатационные расходы:
включены
Коммунальные платежи:
включены
Договор аренды:
Прямой
Связь:
Оплачиваются отдельно
Электричество:
Оплачиваются отдельно
Характеристики здания
Класс:
A
Общая площадь здания:
4000
Этажей в здании:
5
Этаж:
2, 5
Комиссия:
Объект предлагается без комиссии агентства
Тип здания:
Бизнес-центр
Планировка:
Корридорно-кабинетная
Состояние отделки:
Готово к въезду
Вентиляция:
Приточно-вытяжная
Кондиционирование:
Сплит-системы
Безопасность:
Организована сиcтема доступа
Мебель:
Нет
Парковка
Парковка:
Наземная
Стоимость:
25000 рублей
Количество:
1 м/м на 150 кв.м.