Аренда офиса в бизнес центре класса В+, м.Пушкинская
ID 2565
Метро: Пушкинская
Округ: Центральный
Площадь: 260 м2
34'600 руб. за м2/год
456$
Офисный особняк класса В+.
Располагается здание в пешей доступности от нескольких станций метро.
Депозит равен месячной арендной плате.
Присутствует лифт.
Наземная парковка 2 м/м(бесплатно).
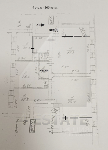
4-й этаж - 260 кв.м., смешанная планировка (холл, 2 зала, 5 кабинетов, кухня, 3 с/у, серверная).
Офис свободен и готов к въезду после косметического ремонта.
Арендная плата: 750 000 рублей в месяц, УСНО (все вкл.), отдельно электричество.
Без комиссии.
Располагается здание в пешей доступности от нескольких станций метро.
Депозит равен месячной арендной плате.
Присутствует лифт.
Наземная парковка 2 м/м(бесплатно).
4-й этаж - 260 кв.м., смешанная планировка (холл, 2 зала, 5 кабинетов, кухня, 3 с/у, серверная).
Офис свободен и готов к въезду после косметического ремонта.
Арендная плата: 750 000 рублей в месяц, УСНО (все вкл.), отдельно электричество.
Без комиссии.
Коммерческие условия
Налогообложение:
УСНО
Эксплуатационные расходы:
включены
Коммунальные платежи:
включены
Договор аренды:
Прямой
Связь:
Оплачиваются отдельно
Электричество:
Оплачиваются отдельно
Характеристики здания
Класс:
B+
Общая площадь здания:
1250
Этажей в здании:
5
Этаж:
4
Комиссия:
Объект предлагается без комиссии агентства
Тип здания:
Бизнес-центр
Планировка:
Смешанная
Состояние отделки:
Готово к въезду
Провайдер:
Билайн
Вентиляция:
Приточно-вытяжная
Кондиционирование:
Сплит-системы
Безопасность:
Организована сиcтема доступа
Мебель:
Нет
Парковка
Парковка:
Наземная
Количество:
1 м/м на 100 кв.м.