Продажа VIP особняка класса А, м.Тверская.
ID 62722
Метро: Тверская, Пушкинская, Чеховская
Округ: Центральный
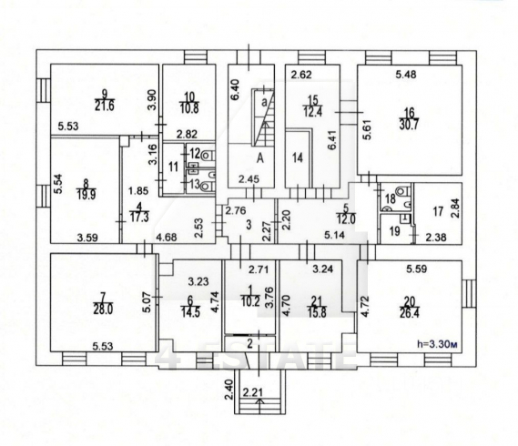
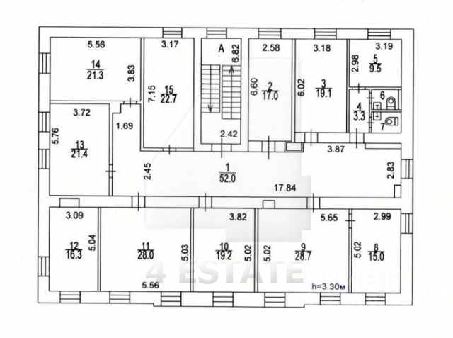
Площадь: 703 м2
Предлагается на продажу презентабельный особняк класса А.
Общая площадь здания: 703 кв.м.(1 этаж, 2 этаж и мансарда).
Транспортную доступность обеспечивает непосредственная близость Бульварного и Садового кольца.
Для арендаторов предусмотрена парковка на 7-8 м/м на огороженной территории, возможны дополнительные места.
В здании недавно выполнен дорогой качественный ремонт под ключ.
Установлены современные инженерные системы и системы автоматики по последнему слову, оптоволокно, серверная, электрощитовая, венткамера.
Приточно-вытяжная вентиляция и кондиционирование.
Все коммуникации - центральные.
Внутреннее и внешнее видеонаблюдение, пост охраны.
Два входа парадный и запасной.
Входная группа, лестничные пролеты и площадки отделаны мрамором.
На каждом из трех уровней предусмотрены кухни и мужские/женские уборные (в мастер-блоке душевая).
Высокие потолки (3,3-3,5 м) и большие окна на всех этажах, все помещения просторные и светлые, из большинства открывается красивый вид на сквер.
Земельный участок 8,6 соток под зданием в аренде до февраля 2059 года.
Два заезда с бульвара через автоматические ворота.
Особняк частично мебелирован дорогой мебелью.
На данный момент особняк сдан одному арендатору, 11 мес. договор.
Стоимость: 800 млн. рублей в месяц, ИП.
Без комиссии.
Общая площадь здания: 703 кв.м.(1 этаж, 2 этаж и мансарда).
Транспортную доступность обеспечивает непосредственная близость Бульварного и Садового кольца.
Для арендаторов предусмотрена парковка на 7-8 м/м на огороженной территории, возможны дополнительные места.
В здании недавно выполнен дорогой качественный ремонт под ключ.
Установлены современные инженерные системы и системы автоматики по последнему слову, оптоволокно, серверная, электрощитовая, венткамера.
Приточно-вытяжная вентиляция и кондиционирование.
Все коммуникации - центральные.
Внутреннее и внешнее видеонаблюдение, пост охраны.
Два входа парадный и запасной.
Входная группа, лестничные пролеты и площадки отделаны мрамором.
На каждом из трех уровней предусмотрены кухни и мужские/женские уборные (в мастер-блоке душевая).
Высокие потолки (3,3-3,5 м) и большие окна на всех этажах, все помещения просторные и светлые, из большинства открывается красивый вид на сквер.
Земельный участок 8,6 соток под зданием в аренде до февраля 2059 года.
Два заезда с бульвара через автоматические ворота.
Особняк частично мебелирован дорогой мебелью.
На данный момент особняк сдан одному арендатору, 11 мес. договор.
Стоимость: 800 млн. рублей в месяц, ИП.
Без комиссии.
Расположение
Округ:
Район:
Расстояние до метро:
5 мин пешком
Коммерческие условия
Налогообложение:
УСНО
Характеристики здания
Класс:
A
Общая площадь здания:
703
Этажей в здании:
2
Этаж:
1, 2, мансарда
Комиссия:
Объект предлагается без комиссии агентства
Тип здания:
Особняк
Планировка:
Корридорно-кабинетная
Состояние отделки:
Ремонт высокого класса
Провайдер:
Билайн
Вентиляция:
Приточно-вытяжная
Кондиционирование:
Сплит-системы
Безопасность:
Организована сиcтема доступа
Мебель:
Частично
Парковка
Парковка:
Наземная
Количество:
8