Продажа особняка под мед.центр, м.Полянке.
ID 52181
Метро: Полянка
Округ: Центральный
Площадь: 580 м2
233'535 руб. за м2
3'264$
Вашему вниманию предлагается особняк в центре Москвы в пяти минутах ходьбы от станции метро Полянка, до Кремля 1200 метров.
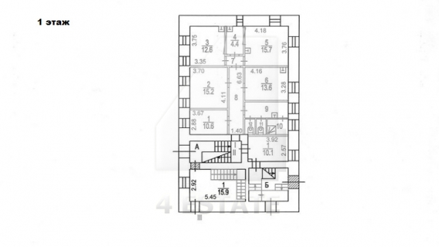
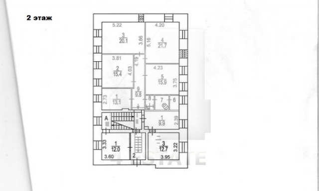
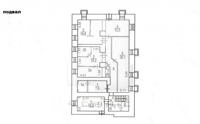
Общая площадь здания 580 кв.м., без учета мансарды.
Особняк состоит из подвала, 1 этажа, 2 этажа, мансарды(возможно оформить).
Особняк расположен на огороженной территории, в тихом и уютном месте, имеется свой заезд с улицы.
Наземная парковка на 6-8 машин.
Электрическая мощность 100 кВт.
Соседи элитный жилой дом и три особняка коммерческого назначения.
Назначения особняка - медицинский центр с лицензией.
В особняке выполнен ремонт, осталась часть медицинской техники.
Земля под зданием и парковкой в собственности.
Стоимость: 110 млн. рублей, ТОРГ.
Без комиссии.
Общая площадь здания 580 кв.м., без учета мансарды.
Особняк состоит из подвала, 1 этажа, 2 этажа, мансарды(возможно оформить).
Особняк расположен на огороженной территории, в тихом и уютном месте, имеется свой заезд с улицы.
Наземная парковка на 6-8 машин.
Электрическая мощность 100 кВт.
Соседи элитный жилой дом и три особняка коммерческого назначения.
Назначения особняка - медицинский центр с лицензией.
В особняке выполнен ремонт, осталась часть медицинской техники.
Земля под зданием и парковкой в собственности.
Стоимость: 110 млн. рублей, ТОРГ.
Без комиссии.
Характеристики здания
Класс:
B+
Общая площадь здания:
580
Этажей в здании:
3.0000
Этаж:
0.0000
Комиссия:
Объект предлагается без комиссии агентства
Тип здания:
Особняк
Планировка:
Корридорно-кабинетная
Состояние отделки:
Готово к въезду
Вентиляция:
Приточно-вытяжная
Кондиционирование:
Сплит-системы
Безопасность:
Видеонаблюдение
Парковка
Парковка:
Наземная
Количество:
8