Продажа представительского особняка класса А, м.Охотный ряд.
ID 50537
Метро: Охотный Ряд
Округ: Центральный
Площадь: 425 м2
546'112 руб. за м2
7'633$
Реконструированный особняк класса А - это двухэтажное здание, общей площадью 425,5 кв.м, расположенное в районе Пресненский, Центрального административного округа Москвы. В шаговой доступности находятся станции метро Арбатская и Охотный ряд, дорога займет 7-10 минут пешком.
Особняк оснащен современными инженерными системами, и соответствует стандартам, предъявляемым к офисным центрам класса «В». Транспортную доступность обеспечивает близость Бульварного и Садового кольца.
Расположение и планировки подходят для размещения консульства, представительства корпорации, клиники.
Аренда земли под зданием и парковкой до 2065г.
Наземная огороженная парковка на 5 м/м.
Особняк предлагается в состояние под отделку и состоит из:
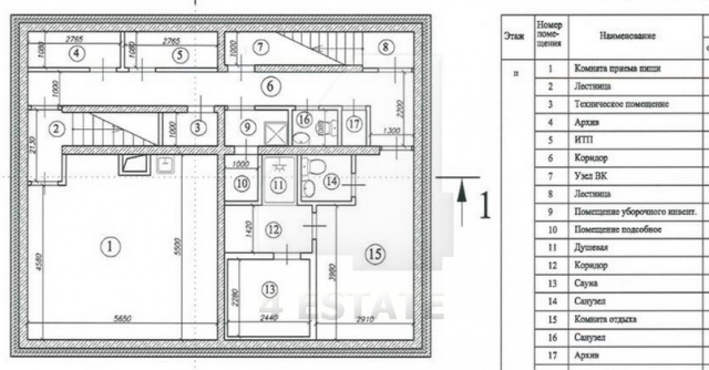
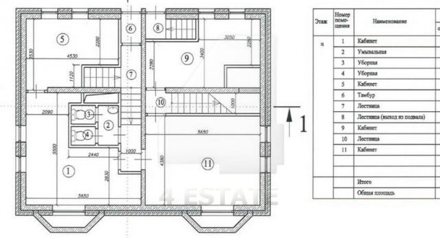
подвал - 93,5 кв.м.
цокольный этаж - 94,8 кв.м.
1 этаж - 102,5 кв.м.
мансардный этаж - 97,8 кв.м.
Стоимость: 225 млн.рублей(с НДС), возможен торг.
Без комиссии.
Особняк оснащен современными инженерными системами, и соответствует стандартам, предъявляемым к офисным центрам класса «В». Транспортную доступность обеспечивает близость Бульварного и Садового кольца.
Расположение и планировки подходят для размещения консульства, представительства корпорации, клиники.
Аренда земли под зданием и парковкой до 2065г.
Наземная огороженная парковка на 5 м/м.
Особняк предлагается в состояние под отделку и состоит из:
подвал - 93,5 кв.м.
цокольный этаж - 94,8 кв.м.
1 этаж - 102,5 кв.м.
мансардный этаж - 97,8 кв.м.
Стоимость: 225 млн.рублей(с НДС), возможен торг.
Без комиссии.
Характеристики здания
Класс:
A
Общая площадь здания:
425
Этажей в здании:
3.0000
Комиссия:
Объект предлагается без комиссии агентства
Тип здания:
Особняк
Планировка:
Смешанная
Состояние отделки:
shell&core
Вентиляция:
Приточно-вытяжная
Кондиционирование:
Центральное
Парковка
Парковка:
Наземная
Количество:
5