Продажа бизнес комплекса класса А «Поклонка плейс»(Poklonka Place), м.Кутузовская.
ID 47073
Метро: Кутузовская
Округ: Западный
Площадь: 79000, 70000, 60000, 50000, 40000, 30763, 22203, 17716, 8858 м2
359'284 руб. за м2
5'022$
Многофункциональный комплекс «Поклонка плейс»(Poklonka Place) состоит из пяти зданий разной высотности: три 13-ти этажные башни, одно 6-этажное здание и одна 20-этажная башня с офисными помещениями и торгово-инфраструктурными на первых этажах.
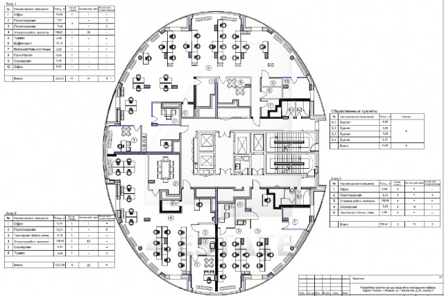
Общая площадь комплекса: 79000 кв.м.
Вся прилегающая к зданиям территория объединена общим 3-этажным подземным паркингом с отдельным заездом на каждый уровень. Единый стилобат позволяет обеспечить высокий для Западного района города парковочный коэффициент - 1 м/м на 60 кв.м.(трехуровневый подземный паркинг на 1360 м/м.)
Выгодные архитектурные решения в комплексе «Поклонка плейс»(Poklonka Place) дают возможность создать развитую внутреннюю инфраструктуру объекта, что сможет удовлетворить запросы самого взыскательного арендатора офисных площадей, а также предоставить различные варианты размещения, как небольшим компаниям, так и крупным корпоративным клиентам. Обособленность комплекса делает возможным создание синергетического эффекта от совместной работы офисных центров, паркинга, инфраструктурной зоны и зоны ритейла.
Комплекс «Поклонка плейс»(Poklonka Place) расположен в 3-х минутах ходьбы от станции метро «Кутузовская» и 8-ми минутах ходьбы от станции метро Парк Победы, в престижном Западном районе Москвы в непосредственной транспортной доступности к деловому центру Москва-Сити на пересечении Кутузовского проспекта и Третьего транспортного кольца. Уникальность местоположения и наличие видовых помещений в башнях обеспечиваются близостью к Парку Победы.
Возможна продажа по зданиям раздельно:
Корпус 1 (6 этажей), общая площадь 30763 кв.м.
Корпус 2 (13 этажей), общая площадь 8858 кв.м.
Корпус 3 (13 этажей), общая площадь 8858 кв.м.
Корпус 4 (13 этажей), общая площадь 8858 кв.м.
Корпус 5 (20 этажей), общая площадь 22203 кв.м.
Стоимость: 6000$ за кв.м.(c НДС), ТОРГ.
Без комиссии.
Общая площадь комплекса: 79000 кв.м.
Вся прилегающая к зданиям территория объединена общим 3-этажным подземным паркингом с отдельным заездом на каждый уровень. Единый стилобат позволяет обеспечить высокий для Западного района города парковочный коэффициент - 1 м/м на 60 кв.м.(трехуровневый подземный паркинг на 1360 м/м.)
Выгодные архитектурные решения в комплексе «Поклонка плейс»(Poklonka Place) дают возможность создать развитую внутреннюю инфраструктуру объекта, что сможет удовлетворить запросы самого взыскательного арендатора офисных площадей, а также предоставить различные варианты размещения, как небольшим компаниям, так и крупным корпоративным клиентам. Обособленность комплекса делает возможным создание синергетического эффекта от совместной работы офисных центров, паркинга, инфраструктурной зоны и зоны ритейла.
Комплекс «Поклонка плейс»(Poklonka Place) расположен в 3-х минутах ходьбы от станции метро «Кутузовская» и 8-ми минутах ходьбы от станции метро Парк Победы, в престижном Западном районе Москвы в непосредственной транспортной доступности к деловому центру Москва-Сити на пересечении Кутузовского проспекта и Третьего транспортного кольца. Уникальность местоположения и наличие видовых помещений в башнях обеспечиваются близостью к Парку Победы.
Возможна продажа по зданиям раздельно:
Корпус 1 (6 этажей), общая площадь 30763 кв.м.
Корпус 2 (13 этажей), общая площадь 8858 кв.м.
Корпус 3 (13 этажей), общая площадь 8858 кв.м.
Корпус 4 (13 этажей), общая площадь 8858 кв.м.
Корпус 5 (20 этажей), общая площадь 22203 кв.м.
Стоимость: 6000$ за кв.м.(c НДС), ТОРГ.
Без комиссии.
Расположение
Округ:
Район:
Метро:
Расстояние до метро:
3 мин пешком
Характеристики здания
Класс:
A
Общая площадь здания:
79000
Этажей в здании:
6.0000
Комиссия:
Объект предлагается без комиссии агентства
Тип здания:
Бизнес-центр
Планировка:
Открытая
Состояние отделки:
shell&core
Вентиляция:
Приточно-вытяжная
Кондиционирование:
Центральное
Безопасность:
Видеонаблюдение
Парковка
Парковка:
Подземная
Количество:
1360