Банковский особняк на продажу, м.Каширская.
ID 45251
Метро: Каширская
Округ: Южный
Площадь: 1355 м2
449'105 руб. за м2
6'307$
Продается здание, полностью оборудованное под банк, на Каширском шоссе (м. Каширская).
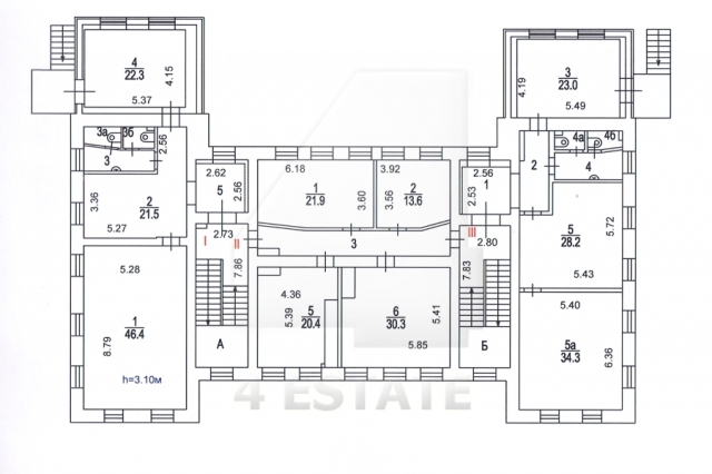
Общая площадь – 1355,1 кв. м.
Площадь земельного участка – 4234 кв. м (в аренде на 49 лет).
Объект представляет собой отдельно стоящее двухэтажное здание с подвалом и мансардным этажом. Высота потолков – 3,5-4 метра. Есть сертифицированное банковское хранилище. Качественный ремонт.
Электрическая мощность – 160 кВт. Все коммуникации, высокоскоростной Интернет, телефония МГТС (30 номеров).
Огороженная, охраняемая территория, парковка на 40-45 машиномест.
Стоимость 550 млн.рублей, ТОРГ.
Без комиссии.
Общая площадь – 1355,1 кв. м.
Площадь земельного участка – 4234 кв. м (в аренде на 49 лет).
Объект представляет собой отдельно стоящее двухэтажное здание с подвалом и мансардным этажом. Высота потолков – 3,5-4 метра. Есть сертифицированное банковское хранилище. Качественный ремонт.
Электрическая мощность – 160 кВт. Все коммуникации, высокоскоростной Интернет, телефония МГТС (30 номеров).
Огороженная, охраняемая территория, парковка на 40-45 машиномест.
Стоимость 550 млн.рублей, ТОРГ.
Без комиссии.
Расположение
Округ:
Район:
Метро:
Расстояние до метро:
15 мин пешком
Характеристики здания
Класс:
B+
Общая площадь здания:
1355
Этажей в здании:
2
Этаж:
подвал, 1, 2, мансарда
Комиссия:
Объект предлагается без комиссии агентства
Тип здания:
Особняк
Планировка:
Смешанная
Состояние отделки:
Готово к въезду
Провайдер:
Билайн
Вентиляция:
Приточно-вытяжная
Кондиционирование:
Сплит-системы
Безопасность:
Видеонаблюдение
Парковка
Парковка:
Наземная
Количество:
45