Продажа презентабельного особняка, м.Смоленская.
ID 10121
Метро: Смоленская
Округ: Центральный
Площадь: 564 м2
150'000 руб. за м2
2'051$
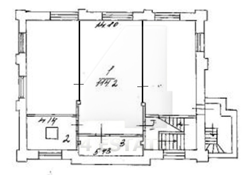
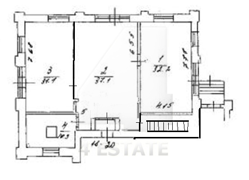
Предлагается на продажу отдельно-стоящее здание,смешанной планировки.
Земля в долгосрочной аренде, полностью готов к въезду.
Наземная парковка на 4-5 м/м(вкл.)
Стоимость: 5 млн.$.
Без комиссии.
Земля в долгосрочной аренде, полностью готов к въезду.
Наземная парковка на 4-5 м/м(вкл.)
Стоимость: 5 млн.$.
Без комиссии.
Характеристики здания
Класс:
A
Общая площадь здания:
514
Этажей в здании:
2.0000
Этаж:
2.0000
Комиссия:
Объект предлагается без комиссии агентства
Тип здания:
Особняк
Планировка:
Смешанная
Состояние отделки:
Готово к въезду
Вентиляция:
Приточно-вытяжная
Кондиционирование:
Сплит-системы
Безопасность:
Пост охраны
Парковка
Парковка:
Наземная
Количество:
4-5