Аренда офиса в бизнес-центре класса В+ "Новинский", м.Смоленская.
ID 6835
Метро: Смоленская
Округ: Центральный
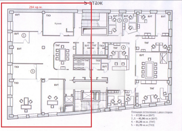
Площадь: 284 м2
46'800 руб. за м2/год
657$
Бизнес центр класса В+ "Новинский".
Располагается в центральном административном округе г.Москва.
Находится в шаговой доступности от м.Смоленская.
Наземная парковка: 1 м/м на 200 кв.м. по 30000 руб.в месяц, УСНО.
Дополнительная парковка напротив в Т.Ц. Лотте Плаза.
Актуальные площади в аренду:
5 этаж - 284 кв.м., смешанная планировка.
Ставка: 46800 руб.за кв.м. в год, с НДС и эксплуатацией, коммуналка отдельно.
Без комиссии.
Располагается в центральном административном округе г.Москва.
Находится в шаговой доступности от м.Смоленская.
Наземная парковка: 1 м/м на 200 кв.м. по 30000 руб.в месяц, УСНО.
Дополнительная парковка напротив в Т.Ц. Лотте Плаза.
Актуальные площади в аренду:
5 этаж - 284 кв.м., смешанная планировка.
Ставка: 46800 руб.за кв.м. в год, с НДС и эксплуатацией, коммуналка отдельно.
Без комиссии.
Коммерческие условия
Налогообложение:
НДС включен
Эксплуатационные расходы:
включены
Коммунальные платежи:
включены
Договор аренды:
Прямой
Связь:
Оплачиваются отдельно
Электричество:
Оплачиваются отдельно
Характеристики здания
Класс:
A
Общая площадь здания:
5800
Этажей в здании:
7
Этаж:
5
Комиссия:
Объект предлагается без комиссии агентства
Тип здания:
Бизнес-центр
Планировка:
Смешанная
Состояние отделки:
Готово к въезду
Провайдер:
Билайн
Вентиляция:
Приточно-вытяжная
Кондиционирование:
Центральное
Безопасность:
Организована сиcтема доступа
Мебель:
Нет
Парковка
Парковка:
Наземная
Стоимость:
30000 рублей
Количество:
1 м/м на 200 кв.м.