Бизнес Центр "Лихоборский", м.Окружная
ID 62880
Метро: Окружная
Округ: Северный
Площадь: 480, 1197, 1307, 2605 м2
16'000 руб., 23'000 руб., 24'000 руб. за м2/год
225$, 323$, 337$
Бизнес Центр "Лихоборский" - расположен в районе Бескудниковский, Северного округа Москвы.
Ближайшие станции метро Окружная и Верхние Лихоборы.
Транспортную доступность обеспечивает близость СВХ и Дмитровского шоссе, для арендаторов предусмотрена наземная парковка на 300 м/м (6 100 рублей за м/м в месяц).
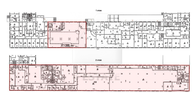
Вакантная площадь:
1-2-й этаж - 2 605 кв.м, отдельный вход, смешанная планировка, состояние за выездом арендатора, собственник готов сделать ремонт по ТЗ арендатора - 16 000 / 24 000 рублей за кв.м в год.
Возможно деление на блоки: 1 307,9 кв.м. или 1 197,9 кв.м.
3-й этаж - 480 кв.м, смешанная планировка, готов к въезду - 23 000 рублей за кв.м в год.
Арендная плата включает НДС, дополнительно коммунальные услуги.
Ближайшие станции метро Окружная и Верхние Лихоборы.
Транспортную доступность обеспечивает близость СВХ и Дмитровского шоссе, для арендаторов предусмотрена наземная парковка на 300 м/м (6 100 рублей за м/м в месяц).
Вакантная площадь:
1-2-й этаж - 2 605 кв.м, отдельный вход, смешанная планировка, состояние за выездом арендатора, собственник готов сделать ремонт по ТЗ арендатора - 16 000 / 24 000 рублей за кв.м в год.
Возможно деление на блоки: 1 307,9 кв.м. или 1 197,9 кв.м.
3-й этаж - 480 кв.м, смешанная планировка, готов к въезду - 23 000 рублей за кв.м в год.
Арендная плата включает НДС, дополнительно коммунальные услуги.
Расположение
Округ:
Район:
Метро:
Расстояние до метро:
10 мин пешком
Коммерческие условия
Налогообложение:
НДС включен
Коммунальные платежи:
не включены
Договор аренды:
Прямой
Связь:
Оплачиваются отдельно
Электричество:
Оплачиваются отдельно
Характеристики здания
Класс:
B+
Этажей в здании:
4
Комиссия:
Объект предлагается без комиссии агентства
Тип здания:
Бизнес-центр
Планировка:
Смешанная
Состояние отделки:
Готово к въезду
Вентиляция:
Приточно-вытяжная
Кондиционирование:
Центральное
Парковка
Парковка:
Наземная
Стоимость:
6100
Количество:
1 м/м на 100 кв.м.