МФК "Электролитный 5", м.Нагорная
ID 62855
Метро: Нагорная
Округ: Южный
Площадь: 585, 630, 795, 1070, 1215, 1800, 1900, 2500, 3000, 3500, 40000, 5000, 6780 м2
42'700 руб. за м2/год
600$
МФК "Электролитный 5" - современный комплекс, расположенный в районе Нагорный, Южного округа Москвы.
В шаговой доступности станция метро Нагорная.
Транспортную доступность обеспечивает близость Варшавского шоссе, для арендаторов предусмотрена вместительная парковка на 275 м/м.
В комплексе установлены современные инженерные системы: центральная система приточно-вытяжной вентиляции с фильтрацией, центральная система холодоснабжения, система естественного проветривания офисов.
Вакантные площади:
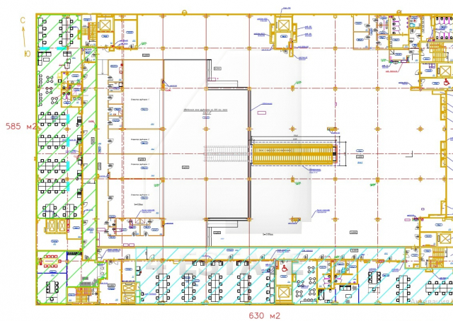
3 этаж –1 215 кв.м. (деление на 585 и 630 кв.м.)
4 этаж –1 865 кв.м. (деление на 795 и 1 070 кв.м.)
5 этаж –1 900 кв.м.
6 этаж –1 800 кв.м.
В помещение сделана отделка, смешанная планировка.
Арендная плата 42 700 рублей за кв.м в год, включая НДС и эксплуатационные расходы.
В шаговой доступности станция метро Нагорная.
Транспортную доступность обеспечивает близость Варшавского шоссе, для арендаторов предусмотрена вместительная парковка на 275 м/м.
В комплексе установлены современные инженерные системы: центральная система приточно-вытяжной вентиляции с фильтрацией, центральная система холодоснабжения, система естественного проветривания офисов.
Вакантные площади:
3 этаж –1 215 кв.м. (деление на 585 и 630 кв.м.)
4 этаж –1 865 кв.м. (деление на 795 и 1 070 кв.м.)
5 этаж –1 900 кв.м.
6 этаж –1 800 кв.м.
В помещение сделана отделка, смешанная планировка.
Арендная плата 42 700 рублей за кв.м в год, включая НДС и эксплуатационные расходы.
Коммерческие условия
Налогообложение:
НДС включен
Эксплуатационные расходы:
включены
Коммунальные платежи:
не включены
Договор аренды:
Долгосрочный прямой
Связь:
Оплачиваются отдельно
Электричество:
Оплачиваются отдельно
Характеристики здания
Класс:
A
Этажей в здании:
6
Этаж:
3,4,5,6
Комиссия:
Объект предлагается без комиссии агентства
Тип здания:
Бизнес-центр / Торговые помещения
Планировка:
Смешанная
Состояние отделки:
Готово к въезду
Вентиляция:
Приточно-вытяжная
Кондиционирование:
Центральное
Безопасность:
Организована сиcтема доступа
Мебель:
Нет
Парковка
Парковка:
Наземная
Количество:
275