Аренда в особняке класса В+, м.Трубная.
ID 62845
Метро: Трубная, Цветной бульвар
Округ: Центральный
Площадь: 175, 350 м2
40'000 руб. за м2/год
562$
Презентабельный особняк класса В+.
Общая площадь особняка: 1717 кв.м.
Располагается в Тверском районе ЦАО Москвы.
Кирпичный пятиэтажный особняк.
Находится в историческом центре, на второй линии Бульварного кольца в семи минутах пешком от м.Цветной б-р и м.Трубная.
Не является памятником архитектуры.
Здание находится в отличном состоянии, капитальный ремонт с заменой перекрытий проведён в 1995 году.
Планировка кабинетная, качественная внутренняя отделка.
Коммуникации центральные, два лифта (установлены в 2023 году).
Наземная парковка на 13 машиномест на прилегающей территории под шлагбаумом.
Земельный участок под зданием (6.04 сот.) в долгосрочной аренде.
Актуальные площади в аренду:
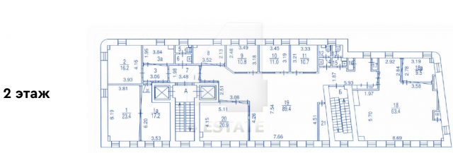
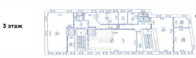
3 этаж - 170 и 350 кв.м., кабинетная планировка.
Стоимость: 40000 рублей за кв.м. в год, НДС включён в стоимость, коммуналка отдельно.
Без комиссии.
Общая площадь особняка: 1717 кв.м.
Располагается в Тверском районе ЦАО Москвы.
Кирпичный пятиэтажный особняк.
Находится в историческом центре, на второй линии Бульварного кольца в семи минутах пешком от м.Цветной б-р и м.Трубная.
Не является памятником архитектуры.
Здание находится в отличном состоянии, капитальный ремонт с заменой перекрытий проведён в 1995 году.
Планировка кабинетная, качественная внутренняя отделка.
Коммуникации центральные, два лифта (установлены в 2023 году).
Наземная парковка на 13 машиномест на прилегающей территории под шлагбаумом.
Земельный участок под зданием (6.04 сот.) в долгосрочной аренде.
Актуальные площади в аренду:
3 этаж - 170 и 350 кв.м., кабинетная планировка.
Стоимость: 40000 рублей за кв.м. в год, НДС включён в стоимость, коммуналка отдельно.
Без комиссии.
Расположение
Округ:
Район:
Метро:
Расстояние до метро:
7 мин пешком
Коммерческие условия
Налогообложение:
НДС включен
Эксплуатационные расходы:
включены
Коммунальные платежи:
не включены
Договор аренды:
Прямой
Связь:
Оплачиваются отдельно
Электричество:
Оплачиваются отдельно
Характеристики здания
Класс:
B+
Общая площадь здания:
1717
Этажей в здании:
5
Этаж:
3
Комиссия:
Объект предлагается без комиссии агентства
Тип здания:
Особняк
Планировка:
Корридорно-кабинетная
Состояние отделки:
Готово к въезду
Провайдер:
Билайн
Вентиляция:
Приточно-вытяжная
Кондиционирование:
Сплит-системы
Безопасность:
Организована сиcтема доступа
Мебель:
Нет
Парковка
Парковка:
Наземная
Стоимость:
20000 рублей
Количество:
1 м/м на 100 кв.м.