Аренда ПСН, м.Царицыно
ID 62804
Метро: Царицыно
Округ: Южный
Площадь: 457 м2
15'750 руб. за м2/год
221$
В аренду предлагаются площади свободного назначения, расположенные в жилом комплексе "Царицыно". Комплекс находится в районе Восточное Бирюлево Юго-Восточного округа Москвы.
Транспортную доступность обеспечивает близость улиц 6-я Радиальная, Элеваторная и Липецкая.
Вакантные площади:
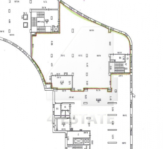
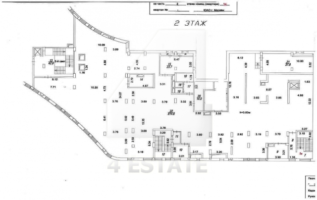
2-й этаж - 457 кв.м. , состояние - под отделку, потолки 3,9 метра, 2 входа, мощность 75 кВт.
Помещение оборудовано системой автоматического водяного пожаротушения и пожарным водопроводом.
Есть 2 технологических отверстия в кровле для установки вент. оборудования.
Арендная плата 600 000 рублей в месяц, УСН.
Транспортную доступность обеспечивает близость улиц 6-я Радиальная, Элеваторная и Липецкая.
Вакантные площади:
2-й этаж - 457 кв.м. , состояние - под отделку, потолки 3,9 метра, 2 входа, мощность 75 кВт.
Помещение оборудовано системой автоматического водяного пожаротушения и пожарным водопроводом.
Есть 2 технологических отверстия в кровле для установки вент. оборудования.
Арендная плата 600 000 рублей в месяц, УСН.
Расположение
Округ:
Район:
Метро:
Расстояние до метро:
5 мин транспортом
Коммерческие условия
Налогообложение:
УСНО
Коммунальные платежи:
не включены
Договор аренды:
Прямой
Связь:
Оплачиваются отдельно
Электричество:
Оплачиваются отдельно
Характеристики здания
Этажей в здании:
2
Комиссия:
Объект предлагается без комиссии агентства
Тип здания:
Жилой дом / Торговые помещения
Планировка:
Смешанная
Состояние отделки:
shell&core
Парковка
Парковка:
Стихийная