Аренда ПСН, м.Спартак
ID 62755
Метро: Спартак
Округ: Северо-Западный
Площадь: 130 м2
60'512 руб. за м2/год
850$
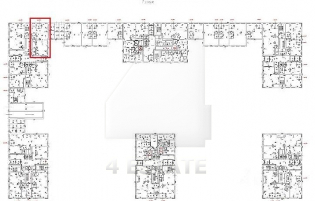
В аренду предлагается площадь свободного назначения, в жилом комплексе "Холланд Парк", в шаговой доступности от станции метро Спартак.
Помещение общей площадью 128,9, отдельный вход с 1-й линии домов, интенсивный трафик, потоки 4,7 метра, состояние - под отделку.
Мощность 25 кВт.
Арендная плата 650 000 рублей в месяц, включая НДС (5%).
Помещение общей площадью 128,9, отдельный вход с 1-й линии домов, интенсивный трафик, потоки 4,7 метра, состояние - под отделку.
Мощность 25 кВт.
Арендная плата 650 000 рублей в месяц, включая НДС (5%).
Расположение
Округ:
Район:
Метро:
Расстояние до метро:
3 мин пешком
Коммерческие условия
Налогообложение:
НДС включен
Коммунальные платежи:
не включены
Договор аренды:
Прямой
Связь:
Оплачиваются отдельно
Электричество:
Оплачиваются отдельно
Характеристики здания
Класс:
A
Этаж:
1
Комиссия:
Объект предлагается без комиссии агентства
Тип здания:
Жилой дом / Торговые помещения
Планировка:
Открытая
Состояние отделки:
shell&core