МФК «Botanica», м.Ботанический сад
ID 62740
Метро: Ботанический сад
Округ: Северо-Восточный
Площадь: 288, 295 м2
55'000 руб. за м2/год
721$
МФК «Botanica» - расположен в районе Ростокино, Северно-Востосного округа Москвы.
В шаговой доступности находится станция метро Ботанический сад.
Транспортную доступность обесчещивает не посредственное близость МСД, на огороженной территории предусмотрена наземная парковка и подземный паркинг.
Установлены современные инженерные системы: централизованная система кондиционирования и приточно-вытяжной вентиляции, системы очистки воздуха, системы пожаротушения и т.д.
Вакантные площади:
5-й этаж - 295.3 кв.м.
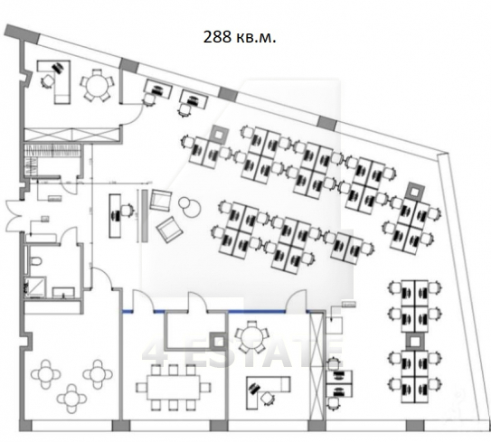
11-й этаж - 288.5 кв.м.
12-й этаж - 288 кв.м.
Все помещения с качественной отделкой, смешанной планировкой, отдельным санузлом и душевой кабиной.
Арендная плата 55 000 рублей за кв.м в год, УСН, включая эксплуатационные расходы.
В шаговой доступности находится станция метро Ботанический сад.
Транспортную доступность обесчещивает не посредственное близость МСД, на огороженной территории предусмотрена наземная парковка и подземный паркинг.
Установлены современные инженерные системы: централизованная система кондиционирования и приточно-вытяжной вентиляции, системы очистки воздуха, системы пожаротушения и т.д.
Вакантные площади:
5-й этаж - 295.3 кв.м.
11-й этаж - 288.5 кв.м.
12-й этаж - 288 кв.м.
Все помещения с качественной отделкой, смешанной планировкой, отдельным санузлом и душевой кабиной.
Арендная плата 55 000 рублей за кв.м в год, УСН, включая эксплуатационные расходы.
Расположение
Округ:
Район:
Метро:
Расстояние до метро:
3 мин пешком
Коммерческие условия
Налогообложение:
УСНО
Эксплуатационные расходы:
включены
Коммунальные платежи:
не включены
Договор аренды:
Прямой
Связь:
Оплачиваются отдельно
Электричество:
Оплачиваются отдельно
Характеристики здания
Класс:
A
Общая площадь здания:
36800
Этажей в здании:
19
Комиссия:
Объект предлагается без комиссии агентства
Тип здания:
Бизнес-центр
Планировка:
Смешанная
Состояние отделки:
Ремонт высокого класса
Вентиляция:
Приточно-вытяжная
Кондиционирование:
Центральное
Безопасность:
Организована сиcтема доступа
Мебель:
Нет