Деловой квартал «Товарищество Рябовской Мануфактуры»,м. Тульская
ID 62268
Метро: Тульская, Верхние Котлы
Округ: Южный
Площадь: 236 м2
56'095 руб. за м2/год
788$
ЛОФТ-квартал "Товарищество Рябовской Мануфактуры".
В шаговой доступности от станции метро Тульская.
Удобная транспортная доступность, для арендаторов предусмотрена наземная парковка (22 000 рублей за м/м в месяц).
Вакантная площадь:
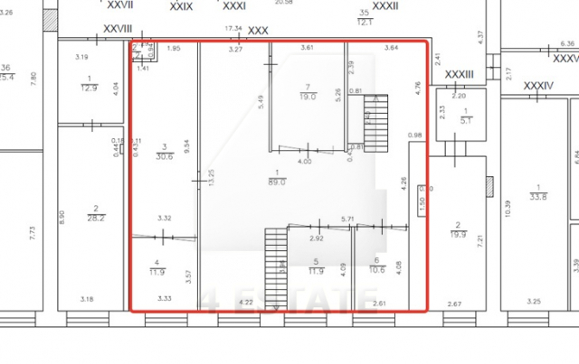
2-й этаж - 236 кв.м, смешанная планировка, стильная отделка, высокие потолки, 2 антресоли.
Арендная плата 1 103 200 рублей в месяц, включая НДС.
Дополнительно оплачиваются коммунальные платежи и услуги интернет.
В шаговой доступности от станции метро Тульская.
Удобная транспортная доступность, для арендаторов предусмотрена наземная парковка (22 000 рублей за м/м в месяц).
Вакантная площадь:
2-й этаж - 236 кв.м, смешанная планировка, стильная отделка, высокие потолки, 2 антресоли.
Арендная плата 1 103 200 рублей в месяц, включая НДС.
Дополнительно оплачиваются коммунальные платежи и услуги интернет.
Расположение
Округ:
Район:
Метро:
Расстояние до метро:
3 мин пешком
Коммерческие условия
Налогообложение:
НДС включен
Эксплуатационные расходы:
включены
Коммунальные платежи:
не включены
Договор аренды:
Субаренда
Связь:
Оплачиваются отдельно
Электричество:
Оплачиваются отдельно
Характеристики здания
Класс:
A
Общая площадь здания:
55000
Комиссия:
Объект предлагается без комиссии агентства
Тип здания:
Бизнес-центр
Планировка:
Смешанная
Состояние отделки:
Готово к въезду
Провайдер:
Билайн
Вентиляция:
Приточно-вытяжная
Кондиционирование:
Центральное
Безопасность:
Видеонаблюдение
Парковка
Парковка:
Наземная
Количество:
300