Офисное здание, м.Третьяковская
ID 62196
Метро: Третьяковская, Новокузнецкая, Полянка
Округ: Центральный
Площадь: 1103, 1295, 1324, 2398, 3719 м2
35'000 руб. за м2/год
492$
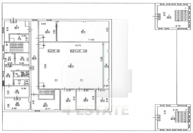
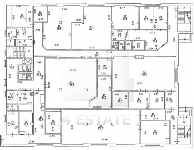
В аренду предлагается комплекс зданий, общей площадью 8 763 кв.м, расположенный в районе Замоскворечье, Центрального округа Москвы.
В шаговой доступности находится станция метро Третьяковская.
В здании сделан стандартный офисный ремонт, кабинетная планировка, высокие потолки.
Возможно деление на лоты :
1 этаж - 1295,5 м2. Кабинетная планировка , требуется ремонт
2 этаж -1324,9 м2. Смешанная планировка ,за выездом арендатора
3 и 4 этаж вместе - 1103,7 м2. Смешанная планировка , за выездом арендатора.
Арендная ставка 35 000 руб./м2 в год, включая НДС и эксплуатационные расходы.
Дополнительно оплачиваются коммунальные платежи и связь.
В шаговой доступности находится станция метро Третьяковская.
В здании сделан стандартный офисный ремонт, кабинетная планировка, высокие потолки.
Возможно деление на лоты :
1 этаж - 1295,5 м2. Кабинетная планировка , требуется ремонт
2 этаж -1324,9 м2. Смешанная планировка ,за выездом арендатора
3 и 4 этаж вместе - 1103,7 м2. Смешанная планировка , за выездом арендатора.
Арендная ставка 35 000 руб./м2 в год, включая НДС и эксплуатационные расходы.
Дополнительно оплачиваются коммунальные платежи и связь.
Расположение
Округ:
Район:
Расстояние до метро:
1 мин пешком
Коммерческие условия
Налогообложение:
НДС включен
Эксплуатационные расходы:
включены
Коммунальные платежи:
не включены
Договор аренды:
Прямой
Связь:
Оплачиваются отдельно
Электричество:
Оплачиваются отдельно
Характеристики здания
Класс:
B
Общая площадь здания:
8763
Этажей в здании:
5
Этаж:
1-5
Комиссия:
Объект предлагается без комиссии агентства
Тип здания:
Бизнес-центр
Планировка:
Корридорно-кабинетная
Состояние отделки:
Готово к въезду
Вентиляция:
Приточно-вытяжная
Кондиционирование:
Центральное
Безопасность:
Видеонаблюдение
Парковка
Парковка:
Наземная