Аренда ПСН на кутузовском проспекте.
ID 62111
Метро: Кутузовская
Округ: Западный
Площадь: 151 м2
20'000 руб. за м2/год
281$
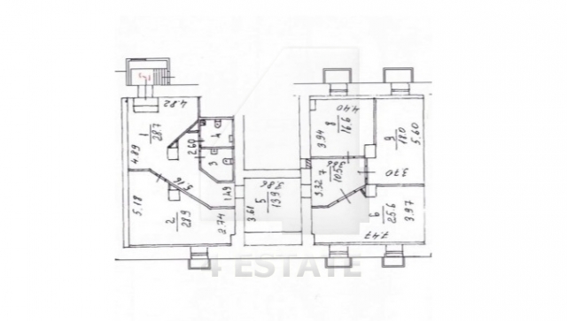
Предлагает в аренду нежилое помещение 151 кв.м. , на 1 линии домов (вход со двора),цокольный этаж, 3 минуты пешком от метро Кутузовская. В 20 метрах - остановка общественного транспорта, рядом подземный переход на противоположную сторону Кутузовского проспекта. Окружение - бутики ведущих брендов, элитные ЖК, офисы банков, рестораны, супермаркеты, салоны красоты, медицинские учреждения. Интенсивный автомобильный трафик. Выделено 8 кВт электроэнергии.Планировка 4 кабинета, 2 сан.узла. В кабинетах есть окна. Потолки 3 метра. Противопожарная сигнализация, кондиционеры, интернет, телефон. Состояние после выезда арендаторов. Прямая аренда, возможны долгосрочные отношения. В ставку аренды включены эксплуатационные и коммунальные расходы.
Помещение свободно.
250 000 рублей в месяц.
Без комиссии.
Помещение свободно.
250 000 рублей в месяц.
Без комиссии.
Расположение
Округ:
Район:
Метро:
Расстояние до метро:
5 мин пешком
Коммерческие условия
Налогообложение:
УСНО
Эксплуатационные расходы:
включены
Коммунальные платежи:
включены
Договор аренды:
Долгосрочный прямой
Связь:
Оплачиваются отдельно
Электричество:
Включены в стоимость
Характеристики здания
Класс:
B
Этаж:
цоколь
Комиссия:
Объект предлагается без комиссии агентства
Тип здания:
Жилой дом
Планировка:
Корридорно-кабинетная
Состояние отделки:
Готово к въезду
Провайдер:
Билайн
Вентиляция:
Приточно-вытяжная
Кондиционирование:
Сплит-системы
Безопасность:
Организована сиcтема доступа
Мебель:
Нет
Парковка
Парковка:
Наземная