Аренда офисов в бизнес центре "Лотос", м.Нахимовский проспект.
ID 60034
Метро: Нахимовский проспект
Округ: Юго-Западный
Площадь: 144, 200 м2
41'400 руб., 50'000 руб. за м2/год
581$, 702$
Бизнес центр класса А "Лотос" - это три отдельно стоящих здания с единым стилобатом.
Общая площадь всех зданий: 152000 кв.м.
Здание расположено в юго-западной части Москвы, район Зюзино.
Удобный выезд на крупные магистрали – проспект Вернадского, Ленинский проспект, Каширское и Варшавское шоссе;
Ближайшая станция метро «Нахимовский проспект» расположена в 5 минутах ходьбы.
Четыре подземных этажа, подземный паркинг на 1326 машиномест.
Площадь участка – 1,78 га;
Уникальные архитектурные решения;
Наличие необходимой инфраструктуры: торгово-офисная галерея расположена на 1-м этаже здания;
Ресторан, кафе, служба ресепшен, единая служба управления;
Современные инженерные системы и оборудование;
Скоростные лифты ведущего производителя KONE;
Центральная система кондиционирования;
Охрана комплекса, видеонаблюдение;
Высота потолков: 3,5 метра.
Панорамное остекление от пола до потолка.
Актуальные площади в аренду:
6 этаж - 144 кв.м., кабинетная планировка, высококачественный ремонт.
Ставка: 50000 руб.за кв.м. в год, УСНО, эксплуатация включена, коммуналка отдельно.
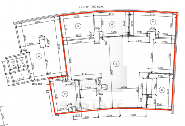
10 этаж - 200 кв.м., смешанная планировка, новый ремонт, имеется вся необходимая офисная мебель.
Ставка: 41400 руб.за кв.м. в год, УСНО, эксплуатация включена, коммуналка отдельно.
Без комиссии.
Общая площадь всех зданий: 152000 кв.м.
Здание расположено в юго-западной части Москвы, район Зюзино.
Удобный выезд на крупные магистрали – проспект Вернадского, Ленинский проспект, Каширское и Варшавское шоссе;
Ближайшая станция метро «Нахимовский проспект» расположена в 5 минутах ходьбы.
Четыре подземных этажа, подземный паркинг на 1326 машиномест.
Площадь участка – 1,78 га;
Уникальные архитектурные решения;
Наличие необходимой инфраструктуры: торгово-офисная галерея расположена на 1-м этаже здания;
Ресторан, кафе, служба ресепшен, единая служба управления;
Современные инженерные системы и оборудование;
Скоростные лифты ведущего производителя KONE;
Центральная система кондиционирования;
Охрана комплекса, видеонаблюдение;
Высота потолков: 3,5 метра.
Панорамное остекление от пола до потолка.
Актуальные площади в аренду:
6 этаж - 144 кв.м., кабинетная планировка, высококачественный ремонт.
Ставка: 50000 руб.за кв.м. в год, УСНО, эксплуатация включена, коммуналка отдельно.
10 этаж - 200 кв.м., смешанная планировка, новый ремонт, имеется вся необходимая офисная мебель.
Ставка: 41400 руб.за кв.м. в год, УСНО, эксплуатация включена, коммуналка отдельно.
Без комиссии.
Расположение
Округ:
Район:
Метро:
Расстояние до метро:
6 мин пешком
Коммерческие условия
Налогообложение:
УСНО
Эксплуатационные расходы:
включены
Коммунальные платежи:
не включены
Договор аренды:
Прямой
Связь:
Оплачиваются отдельно
Электричество:
Оплачиваются отдельно
Характеристики здания
Класс:
A
Общая площадь здания:
152000
Этажей в здании:
20
Этаж:
6, 10
Комиссия:
Объект предлагается без комиссии агентства
Тип здания:
Бизнес-центр
Планировка:
Смешанная
Состояние отделки:
Готово к въезду
Провайдер:
Билайн
Вентиляция:
Приточно-вытяжная
Кондиционирование:
Сплит-системы
Безопасность:
Видеонаблюдение
Мебель:
Нет
Парковка
Парковка:
Подземная
Стоимость:
25000 рублей
Количество:
1 м/м на 100 кв.м.