Аренда офисного и банковского помещения в особняке, м.Полянка.
ID 57086
Метро: Полянка
Округ: Центральный
Площадь: 323, 410 м2
26'348 руб. за м2/год
368$
Предлагается в аренду отдельно стоящем офисно-банковское здание класса В.
Общая площадь здания 1746 кв.м.
Удобное местоположение бизнес центра, в 300 м. от метро Полянка.
Планировка помещений в здании - коридорно-кабинетная.
Косметический ремонт. Наличие офисной мебели.
Присутствует наземная парковка(бесплатно).
Возможно арендовать блоками(этажами):
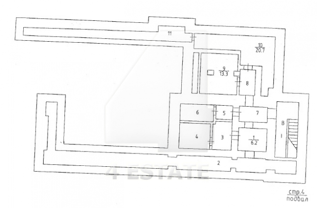
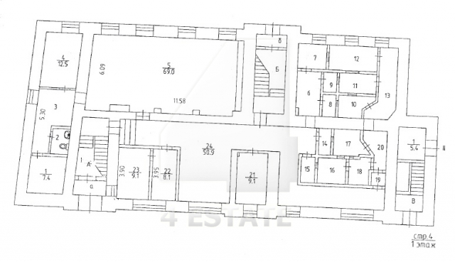
410 кв.м. - подвал 123 кв.м. и 1 этаж 287 кв.м.(банковский), полностью оборудовано под банк(депозитарий, хранилище, кассовые узлы и т.п.)
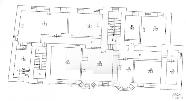
323,1 кв.м. - 4 этаж(офисный), c VIP зоной для руководства.
Ставка: 26500 руб./кв.м. в год, НДС включен, ТОРГ.
Коммунальные платежи оплачиваются отдельно.
Без комиссии.
Общая площадь здания 1746 кв.м.
Удобное местоположение бизнес центра, в 300 м. от метро Полянка.
Планировка помещений в здании - коридорно-кабинетная.
Косметический ремонт. Наличие офисной мебели.
Присутствует наземная парковка(бесплатно).
Возможно арендовать блоками(этажами):
410 кв.м. - подвал 123 кв.м. и 1 этаж 287 кв.м.(банковский), полностью оборудовано под банк(депозитарий, хранилище, кассовые узлы и т.п.)
323,1 кв.м. - 4 этаж(офисный), c VIP зоной для руководства.
Ставка: 26500 руб./кв.м. в год, НДС включен, ТОРГ.
Коммунальные платежи оплачиваются отдельно.
Без комиссии.
Коммерческие условия
Налогообложение:
НДС включен
Эксплуатационные расходы:
не включены
Коммунальные платежи:
не включены
Договор аренды:
Прямой
Связь:
Оплачиваются отдельно
Электричество:
Оплачиваются отдельно
Характеристики здания
Класс:
B
Общая площадь здания:
1746
Этажей в здании:
5.0000
Этаж:
0.0000
Комиссия:
Объект предлагается без комиссии агентства
Тип здания:
Бизнес-центр
Планировка:
Корридорно-кабинетная
Состояние отделки:
Готово к въезду
Вентиляция:
Приточно-вытяжная
Кондиционирование:
Сплит-системы
Безопасность:
Видеонаблюдение
Мебель:
Частично
Парковка
Парковка:
Наземная