Деловой центр «Михайловский», м.Ленинский проспект
ID 62863
Метро: Лермонтовский проспект
Округ: Южный
Площадь: 523 м2
25'420 руб. за м2/год
358$
Деловой центр «Михайловский» - расположен в районе Донской, Южного округа Москвы.
Ближайшие станции метро Ленинский проспект и Шаболовка.
Транспортную доступность обеспечивает близость ТТК, для арендаторов предусмотрена наземная парковка.
Вакантная площадь:
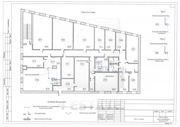
5-й этаж - 523 кв.м, смешанная планировка, готов к въезду.
Арендная плата 1 108 996 рублей в месяц, включая НДС.
Ближайшие станции метро Ленинский проспект и Шаболовка.
Транспортную доступность обеспечивает близость ТТК, для арендаторов предусмотрена наземная парковка.
Вакантная площадь:
5-й этаж - 523 кв.м, смешанная планировка, готов к въезду.
Арендная плата 1 108 996 рублей в месяц, включая НДС.
Расположение
Округ:
Район:
Метро:
Расстояние до метро:
15 мин пешком
Коммерческие условия
Налогообложение:
НДС включен
Эксплуатационные расходы:
включены
Коммунальные платежи:
не включены
Договор аренды:
Прямой
Связь:
Оплачиваются отдельно
Электричество:
Оплачиваются отдельно
Характеристики здания
Класс:
B
Этаж:
5
Комиссия:
Объект предлагается без комиссии агентства
Тип здания:
Бизнес-центр / Административное здание
Планировка:
Смешанная
Состояние отделки:
Готово к въезду
Кондиционирование:
Сплит-системы
Парковка
Парковка:
Наземная