Аренда помещения свободного назначения, м.Алексеевская.
ID 62852
Метро: Алексеевская
Округ: Северо-Восточный
Площадь: 110 м2
32'000 руб. за м2/год
449$
Бизнес-парк класса А "Парк Мира".
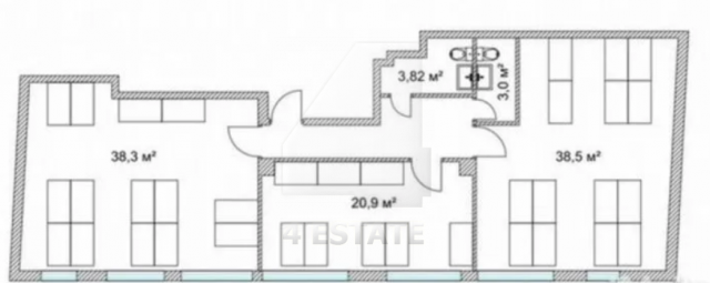
Сдается в аренду помещение площадью в высоком цокольном этаже (с окнами): 110,1 м2 (три кабинета и два сан. узла).
Свободный вход.
Расположено в восьми минутах пешком от метро Алексеевская.
Смешанная планировка: три кабинета, два с/у, душевая.
Высота потолков 3,3 м.
Состояние помещения: с дизайнерским ремонтом.
Провайдеры: Golden Telecom и Ростелеком, WestCall.
Техническое оснащение: система кондиционирования, принудительная система вентиляции, канализация, водоснабжение, отопление, круглосуточное видеонаблюдение.
Ставка: 32000 за кв.м. в год, УСНО, коммуналка отдельно.
Без комиссии.
Сдается в аренду помещение площадью в высоком цокольном этаже (с окнами): 110,1 м2 (три кабинета и два сан. узла).
Свободный вход.
Расположено в восьми минутах пешком от метро Алексеевская.
Смешанная планировка: три кабинета, два с/у, душевая.
Высота потолков 3,3 м.
Состояние помещения: с дизайнерским ремонтом.
Провайдеры: Golden Telecom и Ростелеком, WestCall.
Техническое оснащение: система кондиционирования, принудительная система вентиляции, канализация, водоснабжение, отопление, круглосуточное видеонаблюдение.
Ставка: 32000 за кв.м. в год, УСНО, коммуналка отдельно.
Без комиссии.
Расположение
Округ:
Район:
Метро:
Расстояние до метро:
8 мин пешком
Коммерческие условия
Налогообложение:
УСНО
Эксплуатационные расходы:
включены
Коммунальные платежи:
не включены
Договор аренды:
Прямой
Связь:
Оплачиваются отдельно
Электричество:
Оплачиваются отдельно
Характеристики здания
Класс:
A
Общая площадь здания:
800
Этажей в здании:
3
Этаж:
Цоколь
Комиссия:
Объект предлагается без комиссии агентства
Тип здания:
Особняк
Планировка:
Смешанная
Состояние отделки:
Ремонт высокого класса
Провайдер:
ВестКолл
Вентиляция:
Приточно-вытяжная
Кондиционирование:
Центральное
Безопасность:
Организована сиcтема доступа
Мебель:
Нет
Парковка
Парковка:
Наземная
Количество:
2