Аренда офиса в особняке, м.Арбатская
ID 62743
Метро: Арбатская
Округ: Центральный
Площадь: 103 м2
58'100 руб. за м2/год
787$
Офисный особняк, расположен в районе Арбат, Центрального оркуга Москвы.
В шаговой доступности станции метро Арбатская, Библиотека имени Ленина и Александровский сад.
Транспортную доступность обеспечивает близость Бульварного кольца, для арендаторов предусмотрена наземная парковка.
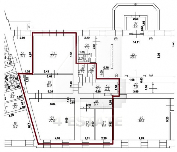
Вакантная площадь:
1-й этаж - 103.3 кв.м, кабинетная планировка, 2 с/у, готов к въезду.
Арендная плата 500 000 рублей в месяц, включая НДС, коммунальные и эксплуатационные платежи, 2 м/м.
В шаговой доступности станции метро Арбатская, Библиотека имени Ленина и Александровский сад.
Транспортную доступность обеспечивает близость Бульварного кольца, для арендаторов предусмотрена наземная парковка.
Вакантная площадь:
1-й этаж - 103.3 кв.м, кабинетная планировка, 2 с/у, готов к въезду.
Арендная плата 500 000 рублей в месяц, включая НДС, коммунальные и эксплуатационные платежи, 2 м/м.
Коммерческие условия
Налогообложение:
НДС включен
Эксплуатационные расходы:
включены
Коммунальные платежи:
включены
Договор аренды:
Прямой
Связь:
Оплачиваются отдельно
Характеристики здания
Класс:
A
Этаж:
1
Комиссия:
Объект предлагается без комиссии агентства
Тип здания:
Особняк
Планировка:
Корридорно-кабинетная
Состояние отделки:
Готово к въезду
Парковка
Парковка:
Наземная
Количество:
2